立即预约 立即预约
免费定制整装家居

免费定制整装家居

一站置家 全程无忧 一省到底
hide.png

当前位置: 首页 > 装修案例效果图 > 龙湖九里晴川|现代简约

龙湖九里晴川|现代简约 300平 现代简约风格效果图

收藏
案例风格 现代简约 案例户型 四居 案例面积 300平米
楼盘名称 龙湖九里晴川 设计师 林凤设计师 案例类型 改善性住宅

设计理念:家是适合沉思的空间,当我们回到这里,可以恢复身心的平衡与冷静,远离现代生活的忙碌节奏和反复干扰。而同时也期望空间能散发出引导的讯号,带动我们置身别样、惬意的日常生活。

客厅
第1张
第2张
餐厅
第1张
卧室
第1张
第2张
第3张
第4张
卫生间
第1张
第2张
衣帽间
第1张
户型图
第1张
第2张
第3张
龙湖九里晴川-300平-现代风格-客厅.jpg 龙湖九里晴川-300平-现代风格-首图.jpg

探讨与自然之间的关系,空间摒弃张扬的色彩以及繁复的装饰堆砌。用最简单的材质与空间线条,演绎无为而治,似乎与风景不期而遇,从而给予屋主自然之间带来的治愈。客厅为多功能载体,除了带给屋主放松、舒缓的感受,同样也是家人之间、客人之间的交谈、沟通的空间。三种不同体态与材质的沙发呈围合状摆放,棉麻天生质朴的气质以及皮革的沉稳优雅,共同烘托出空间的艺术张力。

龙湖九里晴川-300平-现代风格-餐厅.jpg

优化餐厨使用动线,重新分配空间比例。借由材料本身的质感,赋予回家一份有力的仪式感。 餐桌台面为理石桌面,让空间实用之余与又丰富视觉。并利用散发着自然气息的光感的石材修饰墙体,静驻之间仿佛对空间诉说着悠长故事。用一扇玻璃门与厨房隔开,本身自带的透光与反射效果,无形中将空间放大,制造堆叠景象。

龙湖九里晴川-300平-现代风格-次卧室.jpg 龙湖九里晴川-300平-现代风格-卧室.jpg 龙湖九里晴川-300平-现代风格-客卧室.jpg 龙湖九里晴川-300平-现代风格-主卧室.jpg

主卧为套间,整个三层为主卧空间。具有超大的卧室以及卫生间,给人一中舒适感。

龙湖九里晴川-300平-现代风格-卫生间.jpg 龙湖九里晴川-300平-现代风格-主卧卫生间.jpg

主卫瓷砖为通体版,提升空间视觉效果。有条不紊、整齐有序,是屋主喜欢的家居环境。宽敞通透的自然气息,使空间传递出悠扬惬意的纯净氛围,尤其抚慰人心。

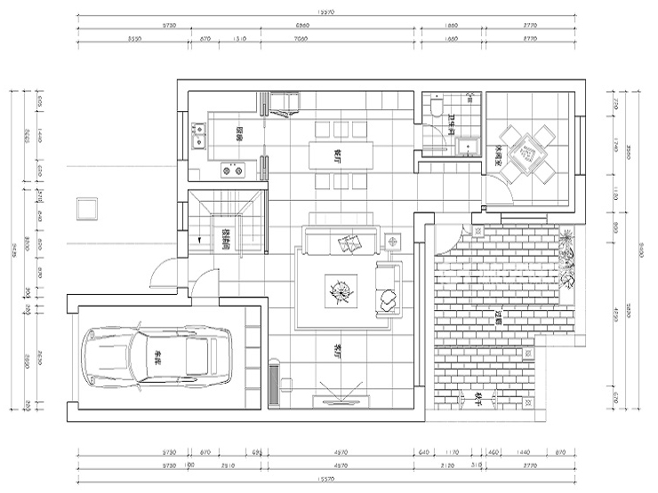
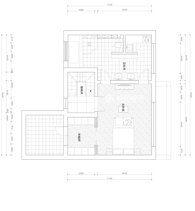
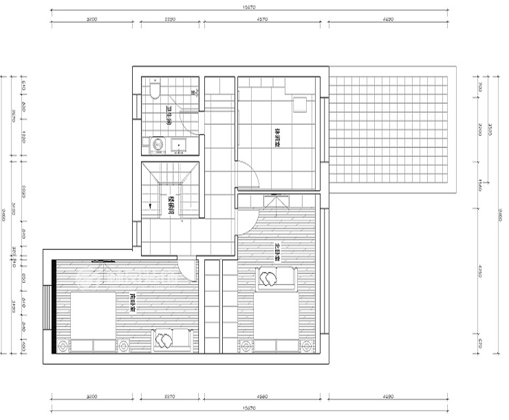
龙湖九里晴川-300平-现代风格-衣帽间.jpg 龙湖九里晴川-300平-现代风格-户型图三楼.jpg 龙湖九里晴川-300平-现代风格-户型图二楼.jpg 龙湖九里晴川-300平-现代风格-户型图一楼.jpg

案例设计师

林凤设计师

设计师:林凤设计师

从业时间:9年

设计理念:以人为本,一切围绕着生活来创造更佳的生活品质。

预约设计师

算算你家装修多少钱

报名即享丰厚赠品,享半价装修

免费报价
咨询热线:400-656-9909
20190221103704574636.jpg

精品设计案例

20180612134930523248.jpg 服务号二维码.jpg