立即预约 立即预约
免费定制整装家居

免费定制整装家居

一站置家 全程无忧 一省到底
hide.png

当前位置: 首页 > 装修案例效果图 > 城建北尚|现代风格

城建北尚|现代风格 180平 现代简约风格效果图

收藏
案例风格 现代简约 案例户型 三居 案例面积 180平米
楼盘名称 城建北尚 设计师 林凤设计师 案例类型 改善性住宅

设计理念:整体格局南北通透,保留三个居住的房间。客餐厅贯穿一起,使得整体空间开阔。中性色色系,深浅搭配,让空间更加的有层次感。无主灯设计设计,打造“有序”却“流动”的空间。

客厅
第1张
第2张
第3张
餐厅
第1张
卧室
第1张
第2张
卫生间
第1张
厨房
第1张
儿童房
第1张
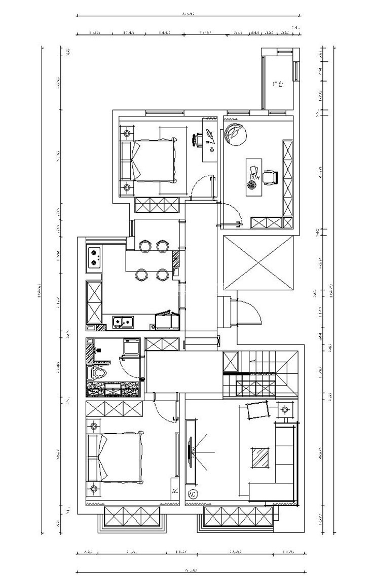
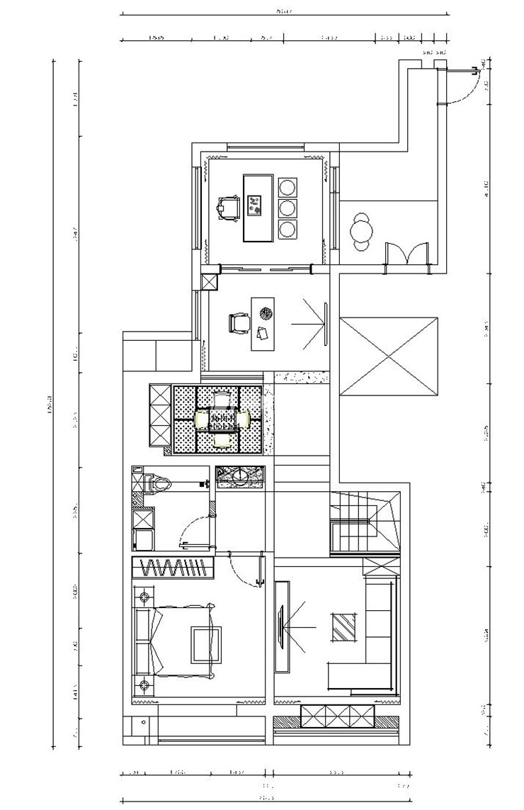
户型图
第1张
第2张
城建北尚-180平-现代风格-客厅-2.jpg 城建北尚-180平-现代风格-客厅.jpg 城建北尚-180平-现代风格-首图.jpg

电视背景墙运用墙板,高低层次增加立体感。客厅灯光设计,通过控制灯具的明暗,改变室内的氛围。

城建北尚-180平-现代风格-餐厅.jpg

餐厅位于厨房与客厅之间,动线流畅,并设计配套橱柜,一柜多用。即有餐边柜功能还可以当做西厨操作收纳柜。

城建北尚-180平-现代风格-卧室.jpg 城建北尚-180平-现代风格-老人房.jpg

主卧为暗色系,独立衣帽间,卫生间,使用便利。床头鱼线灯垂下来,增加层次。

城建北尚-180平-现代风格-卫生间.jpg

主卫瓷砖为通体版,提升空间视觉效果。

城建北尚-180平-现代风格-厨房.jpg

开放式的厨房,广纳了家的每一缕温馨细节,把生活的爱意与温暖融入进每一道菜中。橱柜与岛台的结合,让家人有了更为自然的互动关系,功能上的优化亦带来了滔滔的情感。

城建北尚-180平-现代风格-儿童房.jpg 城建北尚-180平-现代风格-户型图1层.jpg 城建北尚-180平-现代风格-户型图2层.jpg

案例设计师

林凤设计师

设计师:林凤设计师

从业时间:9年

设计理念:以人为本,一切围绕着生活来创造更佳的生活品质。

预约设计师

算算你家装修多少钱

报名即享丰厚赠品,享半价装修

免费报价
咨询热线:400-656-9909
20190221103704574636.jpg

精品设计案例

20180612134930523248.jpg 服务号二维码.jpg