立即预约 立即预约
免费定制整装家居

免费定制整装家居

一站置家 全程无忧 一省到底
hide.png

当前位置: 首页 > 装修案例效果图 > 保利中粮堂悦|现代简约

保利中粮堂悦|现代简约 140平 现代简约风格效果图

收藏
案例风格 现代简约 案例户型 四居 案例面积 140平米
楼盘名称 保利中粮堂悦 设计师 林凤设计师 案例类型 改善性住宅

设计理念:业主男士上班族,女士在家带两个孩子,男孩6岁,小学一年级,女孩4岁。设计的重点是整合更多的收纳空间,因为两个孩子的玩具比较多并需要活动空间,妹妹学习钢琴,需要考虑钢琴位置。此房主要是提升生活品质,需要以使用的角度出发。整体风格以现代风格为主,感觉要温馨。

客厅
第1张
餐厅
第1张
卧室
第1张
第2张
卫生间
第1张
厨房
第1张
阳台
第1张
儿童房
第1张
第2张
第3张
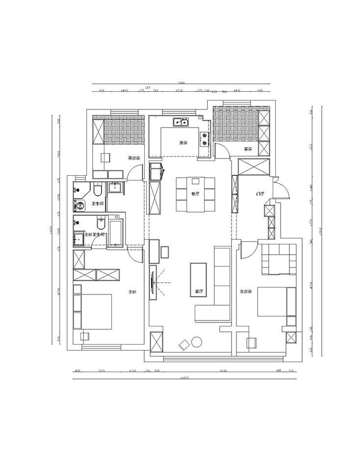
户型图
第1张
保利中粮堂悦-140平-现代风格-客厅.jpg

客厅的设计难点在于钢琴位置的处理和家政独立的收纳。因为考虑到琴声会影响到左右邻居,所以钢琴放在客厅是比较理想的,因为有两个南卧室。因为业主此次装修以实用为主,所以电视背景墙造型采用简单的局部对称墙板来装饰,所以将钢琴放置在电视背景墙一侧会比较节省空间并提升空间饱满度。阳台定制独立家政柜,将杂物及清洁用品收纳到专属空间。

保利中粮堂悦-140平-现代风格-餐厅.jpg

餐厅位于厨房与客厅之间,动线流畅,并设计配套橱柜,一柜多用。即有餐边柜功能还可以当做西厨操作收纳柜。

保利中粮堂悦-140平-现代风格-客房.jpg 保利中粮堂悦-140平-现代风格-主卧室.jpg

主卧为套间,带有独立的卫生间,门后设置衣柜,睡眠区独立出来,营造静谧的空间感受。

保利中粮堂悦-140平-现代风格-主卫.jpg

主卫瓷砖为通体版,提升空间视觉效果。跳色的浴室柜打破固有的灰色体系。坐便的空间比较狭小,放置浴屏会使空间受限,采用单扇玻璃既可以挡水,也可以将空间提升到最大限度。

保利中粮堂悦-140平-现代风格-厨房.jpg

厨房的窗户为中间矮结构窗,所以窗上也可以定制上柜,这样可以增加储物。但是厨房的采光会降低,所以我设计了光滑的浅色平板造型得墙砖,这样可以提高厨房采光的折射使厨房亮度提高。橱柜采用上浅下深的颜色搭配,并且采用隐形拉手,这样可以突出厨房的线条感。

保利中粮堂悦-140平-现代风格-客厅阳台.jpg 保利中粮堂悦-140平-现代风格-男孩房.jpg 保利中粮堂悦-140平-现代风格-女孩房2.jpg 保利中粮堂悦-140平-现代风格-女孩房.jpg 保利中粮堂悦-140平-现代风格-户型方案.jpg

案例设计师

林凤设计师

设计师:林凤设计师

从业时间:9年

设计理念:以人为本,一切围绕着生活来创造更佳的生活品质。

预约设计师

算算你家装修多少钱

报名即享丰厚赠品,享半价装修

免费报价
咨询热线:400-656-9909
20190221103704574636.jpg

精品设计案例

20180612134930523248.jpg 服务号二维码.jpg