立即预约 立即预约
免费定制整装家居

免费定制整装家居

一站置家 全程无忧 一省到底
hide.png

当前位置: 首页 > 装修案例效果图 > 保利和光屿湖|现代轻奢

保利和光屿湖|现代轻奢 130平 轻奢风格效果图

收藏
案例风格 轻奢 案例户型 三居 案例面积 130平米
楼盘名称 保利和光屿湖 设计师 林凤设计师 案例类型 改善性住宅

设计理念:整个空间色调为暖色调,配色和谐,根据需求细分功能,因地制宜构筑更贴合场景的空间,注入温暖的秋意,温暖舒适。

客厅
第1张
第2张
餐厅
第1张
第2张
卫生间
第1张
第2张
第3张
厨房
第1张
第2张
儿童房
第1张
门厅
第1张
第2张
过廊
第1张
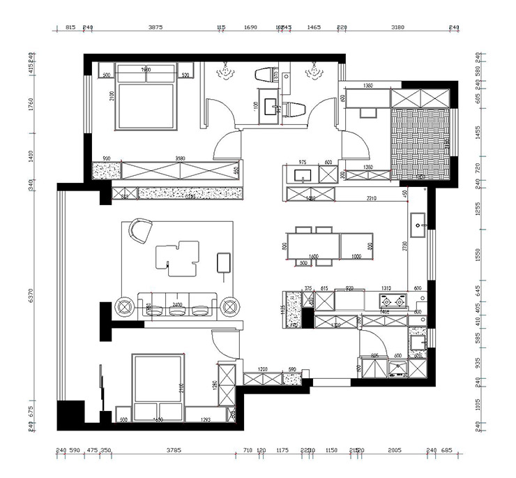
户型图
第1张
保利和光屿湖-130平-现代轻奢-电视背景.jpg 保利和光屿湖-130平-现代轻奢-客厅.jpg

全屋无主灯设计开阔场地,以简约美学勾勒意无穷功能区,几分现代居所的高级大气,混合些许艺术美宅的闲情雅趣,不同的材质相互搭配,通过肌理与质感的融合,构筑感官舒适,诱发生活品味与睿智空间顷刻交心。

保利和光屿湖-130平-现代轻奢-餐厅.jpg 保利和光屿湖-130平-现代轻奢-餐厅1.jpg

餐厅位于厨房与客厅之间,动线流畅,并设计配套橱柜,一柜多用。颇具情调的挂画将餐厅的质感与气质无痕串联,让烟火气与仪式感放置在同一片天地。最大化利用空间尺度,流畅利落的线性分隔体块,让功能属性与美学概念完美糅合。

保利和光屿湖-130平-现代轻奢-次卫生间.jpg 保利和光屿湖-130平-现代轻奢-洗衣间.jpg 保利和光屿湖-130平-现代轻奢-主卫生间.jpg

主卫瓷砖为通体版,提升空间视觉效果,与白色马桶形成对比,彰显精致与高雅。旁边设置壁龛,增加收纳空间。

保利和光屿湖-130平-现代轻奢-厨房.jpg 保利和光屿湖-130平-现代轻奢-厨房.jpg

开放式厨房,让烹饪美食的流程变得井然有序,哑光灰面板与同色系墙面、地砖浑然天成,选用大面积板材为拼线做减法,先出横竖交替面,最大程度一气呵成。

保利和光屿湖-130平-现代轻奢-儿童房.jpg

粉色系的女儿房,充满了少女的纯真与梦想,童年也一样会是梦幻一样的色彩

保利和光屿湖-130平-现代轻奢-玄关.jpg 保利和光屿湖-130平-现代轻奢-门厅.jpg

宽敞的门厅会让人一进来就感到放松舒适,玄关也会有足够的收纳空间。

保利和光屿湖-130平-现代轻奢-过廊.jpg 保利和光屿湖-130平-现代轻奢-户型图.jpg

案例设计师

林凤设计师

设计师:林凤设计师

从业时间:5年

设计理念:经验和习惯的沉淀,时尚与美观的结合

预约设计师

算算你家装修多少钱

报名即享丰厚赠品,享半价装修

免费报价
咨询热线:400-656-9909
20190221103704574636.jpg

精品设计案例

20180612134930523248.jpg 服务号二维码.jpg