立即预约 立即预约
免费定制整装家居

免费定制整装家居

一站置家 全程无忧 一省到底
hide.png

当前位置: 首页 > 装修案例效果图 > 和泓长白府|现代简约

和泓长白府|现代简约 114平 现代简约风格效果图

收藏
案例风格 现代简约 案例户型 三居 案例面积 114平米
楼盘名称 和泓长白府 设计师 王杰 案例类型 改善性住宅

设计理念:本案是现代简约风格,整体设计主要颜色为白灰色系,木色作为点缀色,简约而不简单,给人一种沉稳大气的质朴美感,照映着我们平淡简单的美好生活。

客厅
第1张
第2张
第3张
餐厅
第1张
第2张
第3张
卧室
第1张
卫生间
第1张
第2张
书房
第1张
衣帽间
第1张
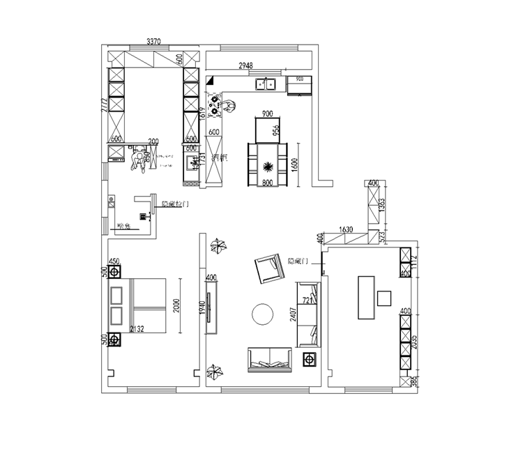
户型图
第1张
王杰设计丨和泓长白府-改-客餐厅 0-20211102-164306.jpg 王杰设计丨和泓长白府-改-客餐厅 2-20211102-164306.jpg 1.jpg

客厅棚顶采用无主光源无主灯设计(见光不见灯,分区域散点照明)。通过筒灯、磁吸灯来照明,无主灯相对于原来的主灯设计更加具有层次,它有一个明暗对比,无主灯设计能够让空间更具层次感,显得非常的高级,若隐若现,层次分明。

王杰设计丨和泓长白府-改-客餐厅 9-20211102-164305.jpg 王杰设计丨和泓长白府-改-客餐厅 10-20211102-164306.jpg 王杰设计丨和泓长白府-改-客餐厅 3-20211102-164306.jpg

就餐区既要满足来亲人朋友就餐的实用功能,还要考虑到整个空间本身的特点与气质。 在就餐区的颜色搭配方面选用木纹色的台面,是意在配合房屋整体的层次感,赋予空间一种视觉冲击,旁边链接着厨房的中岛台,用餐时会有更大的空间。

王杰设计丨和泓长白府-改-主卧 7-20211102-164306.jpg

主卧是客户在身心疲惫的时候依靠的港湾,所以在颜色搭配方面费尽心思,打造一种能使屋子的主人可以放松的生活坏境。 亮点:暖色调的运用,让人有想昏昏欲睡的冲动。搭配暖色调的床头背景墙,让温馨完美极致的诠释出来了。

王杰设计丨和泓长白府-改-卫生间 5-20211102-164306.jpg 王杰设计丨和泓长白府-改-卫生间 6-20211102-164305.jpg

卫生间做了隐形拉门,使用卫生间的时候可以拉出来,不使用的时候可以完美隐藏在墙壁中。而卫生间墙壁地面使用的都是灰色性瓷砖,看起来融为一体,使卫生间看起来更加的干净整洁。

王杰设计丨和泓长白府-改-书房 8-20211102-164306.jpg

书房的设计原则主要是两点,营造氛围和提高效率,而两点也可以同为一谈,书房需要营造出一个安静、舒适的氛围,以便主人可以随时进入专注的状态,能够快速开始阅读或工作,本意就是为了提高主人的工作效率。所以在户型空间充足的条件下,专门开放出一个房间做为书房,满足自己在不被任何人打扰的情况下办公、看书、思考。

王杰设计丨和泓长白府-改-衣帽间 4-20211102-164305.jpg 和泓长白府-Model_副本.png

案例设计师

王杰

设计师:王杰

从业时间:7年

设计理念:因生活而设计,因设计而完美。

预约设计师

算算你家装修多少钱

报名即享丰厚赠品,享半价装修

免费报价
咨询热线:400-656-9909
20190221103704574636.jpg

精品设计案例

20180612134930523248.jpg 服务号二维码.jpg