立即预约 立即预约
免费定制整装家居

免费定制整装家居

一站置家 全程无忧 一省到底
hide.png

当前位置: 首页 > 装修案例效果图 > 龙湖九里颐和|中式风格

龙湖九里颐和|中式风格 145平 中式风格效果图

收藏
案例风格 中式 案例户型 四居 案例面积 145平米
楼盘名称 龙湖九里颐和 设计师 林凤装饰全案设计师 案例类型 改善性住宅

设计理念:设计整体沉稳 大气;男主 喜欢一些厚重的家具 整体要看起来大气 有档次 中式气息要浓烈一些

客厅
第1张
第2张
第3张
餐厅
第1张
卧室
第1张
第2张
卫生间
第1张
第2张
厨房
第1张
书房
第1张
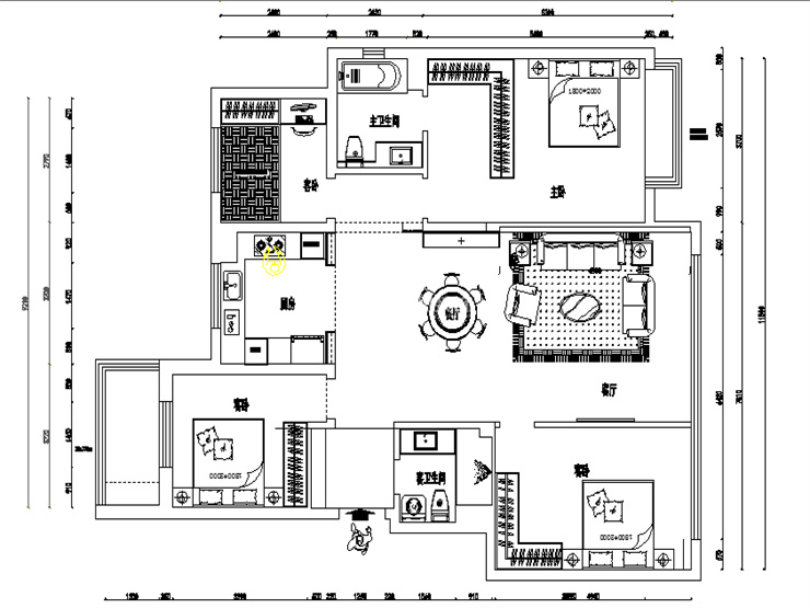
户型图
第1张
客厅..jpg 客厅...jpg 客厅.jpg

电视背景墙采用护墙板隐形门设计 使电视背景墙看起来更大气 顶面采用木线做装饰 使整个空间更加和谐 中式味道更浓烈些 地面采用1500.*750大地砖通铺 使空间更加敞亮。

餐厅.jpg

餐厅采用圆桌跟顶面呼应。

次卧.jpg 主卧.jpg

主卧背景墙以中式壁画和护墙板搭配 整个主卧空间比较大 做出半开放式衣帽间功能区;背景墙采用淡黄色的壁画为主使空间更加温馨禅意 北卧:整个房间以客房为主 需要的是更多的收纳性 在北面采光相对来说差一点 所以榻榻米垫子采用了浅灰色 提亮下空间颜色。

主卫.jpg 客卫.jpg

整体墙面以灰色为主 中式风格定制柜子 洗手盆柜子做定制在马桶后面制作出操作台空间;与主卫生空间 相呼应。

厨房.jpg

用酒柜的方式做隐藏式推拉门设计 通透感更好些。

榻榻米.jpg 平面图.jpg

案例设计师

林凤装饰全案设计师

设计师:林凤装饰全案设计师

从业时间:5年

设计理念:设计源于生活,细节成就品质。

预约设计师

算算你家装修多少钱

报名即享丰厚赠品,品质装修

免费报价
咨询热线:400-656-9909
20190221103704574636.jpg

精品设计案例

20180612134930523248.jpg 服务号二维码.jpg