立即预约 立即预约
免费定制整装家居

免费定制整装家居

一站置家 全程无忧 一省到底
hide.png

当前位置: 首页 > 装修案例效果图 > 格林玫瑰湾|港式风格

格林玫瑰湾|港式风格 105平 港式风格效果图

收藏
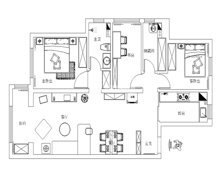
案例风格 港式 案例户型 三居 案例面积 105平米
楼盘名称 格林玫瑰湾 设计师 林凤装饰全案设计师 案例类型 婚房

设计理念:三室两厅一厨两卫,高层,前面没有挡光,所以采光是非常好的,港式风格的简洁明快,休闲自然的感觉,一天的忙碌之后回到家能够轻松愉快。

客厅
第1张
第2张
第3张
餐厅
第1张
卧室
第1张
卫生间
第1张
厨房
第1张
书房
第1张
儿童房
第1张
过廊
第1张
户型图
第1张
格林玫瑰湾-105平-港式-客厅.jpg 格林玫瑰湾-105平-港式-客厅2.jpg 格林玫瑰湾-105平-港式-首图.jpg

垭口进行了木作包口,增加的客厅的美观度,也能更好的防止磕碰,电视背景墙选用白色石材上墙,干净大方,增加了港式风格的特点。

格林玫瑰湾-105平-港式-餐厅.jpg

利用吊棚的设计来进行客餐厅的分区,大方得体在餐厅上方的吊棚进行了处理,吊棚的宽度和餐桌的宽度一致,在 设计上讲究呼应,会让业主有一个轻松愉快的场所。

格林玫瑰湾-105平-港式-主卧室.jpg

卧室还是温馨为主,其他为辅,选择比较耐用的复合地板,比较实用于地热,也容易清洁。尽可能的降低成本,屋内的装修还是要简洁实用,没必要装修的太过繁华。

格林玫瑰湾-105平-港式-卫生间.jpg

卫生间有选用浴屏来将淋浴区和其他位置隔离,业主的 想法是 暖色调为主,所以选用黄色配套的墙砖地砖,洗手盆选用吊柜,这样柜的下方也可以放洗脚盆,清洁卫生也比较方便。

格林玫瑰湾-105平-港式-厨房.jpg

厨房L型橱柜,洗菜盆放在窗下,刷碗到时候空气流动性比较好,也可以观察园区的环境,另一边摆放烟机灶具,中间可以放一个菜板,洗完菜之后切菜,然后炒菜,动线合理,棚顶选择铝扣板的吊顶,好清洁。

格林玫瑰湾-105平-港式-书房.jpg 格林玫瑰湾-105平-港式-儿童房.jpg 格林玫瑰湾-105平-港式-过廊.jpg 格林玫瑰湾-105平-港式--户型图.jpg

案例设计师

林凤装饰全案设计师

设计师:林凤装饰全案设计师

从业时间:5年

设计理念:设计源于生活,细节成就品质。

预约设计师

算算你家装修多少钱

报名即享丰厚赠品,品质装修

免费报价
咨询热线:400-656-9909
20190221103704574636.jpg

精品设计案例

20180612134930523248.jpg 服务号二维码.jpg