立即预约 立即预约
免费定制整装家居

免费定制整装家居

一站置家 全程无忧 一省到底
hide.png

当前位置: 首页 > 装修案例效果图 > 吾悦华府 |现代简约

吾悦华府 |现代简约 191平 现代简约风格效果图

收藏
案例风格 现代简约 案例户型 三居 案例面积 191平米
楼盘名称 吾悦华府 设计师 林凤装饰 案例类型 改善性住宅

设计理念:整体以暖色调为主的现代风格,空间上的合理利用让放的功能性齐全,虽然是现代风格但并没有用传统黑白灰的搭配,而是采用暖灰让空间看起来非常温馨的同时也非常时尚大气。

客厅
第1张
第2张
餐厅
第1张
卧室
第1张
卫生间
第1张
第2张
第3张
厨房
第1张
衣帽间
第1张
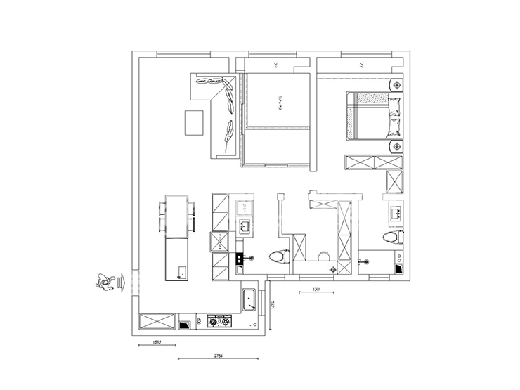
户型图
第1张
s5-王国婷-吾悦华府-110平-现代-客厅.jpg s5-王国婷-吾悦华府-110平-现代-首图.jpg

客厅原本不是很宽敞,与业主共同研究下把客厅和一个卧室归为一个空间里,这样客厅就变得宽敞许多,并且也增添了空间的多样性,在背景墙的设计上没有用过多的装饰,适当的留白处理会让空间更加美观,在色彩的选择上,客厅整体色彩选择纯度偏低,主要以暖灰色为主,搭配深色大理石,提升了空间的高级感。

s5-王国婷-吾悦华府-110平-现代-餐厅.jpg

餐厅除了生活中常见的餐桌,还设置了一个岛台,提升了生活品味,也便于日常的使用。

s5-王国婷-吾悦华府-110平-现代-主卧.jpg

共有三个卧室,其中两个卧室是作为孩子的卧室其满足了孩子的学习要求,剩余两个卧室作为休息睡眠的空间没有过多的颜色修饰,整体饱和度偏低,都选用白色和木色搭配让空间看起来柔和,舒适,希望为业主提供更加柔和的睡眠空间。

s5-王国婷-吾悦华府-110平-现代-客卫.jpg s5-王国婷-吾悦华府-110平-现代-客卫2.jpg s5-王国婷-吾悦华府-110平-现代-主卫.jpg

此空间有两个卫生间一个空间设置了浴屏做了干湿分离的处理,极大的解决了卫生间潮湿难打理的问题,让业主在每一处的设计细节中感受便利。另一个卫生间做了分区处理洗手区设置在外面淋浴和如厕设置在了里面,对生活的提供了便利。

s5-王国婷-吾悦华府-110平-现代-厨房.jpg

厨房是一个开放式厨房墙面选择哑光的暖灰色瓷砖在搭配上质感很好的橱柜和白色的理石台面,让原本油腻的厨房空间变得色彩清新,相信在此业主会有更享受的烹饪体验。

s5-王国婷-吾悦华府-110平-现代-衣帽间.jpg s5-王国婷-吾悦华府-110平-现代-平面.jpg

案例设计师

林凤装饰

设计师:林凤装饰

从业时间:8年

设计理念:人为生活而设计,设计为生活而存在

预约设计师

算算你家装修多少钱

报名即享丰厚赠品,享半价装修

免费报价
咨询热线:400-656-9909
20190221103704574636.jpg

精品设计案例

20180612134930523248.jpg 服务号二维码.jpg