立即预约 立即预约
免费定制整装家居

免费定制整装家居

一站置家 全程无忧 一省到底
hide.png

当前位置: 首页 > 装修案例效果图 > 华润二十四城|现代风格

华润二十四城|现代风格 93平 现代简约风格效果图

收藏
案例风格 现代简约 案例户型 二居 案例面积 93平米
楼盘名称 华润二十四城 设计师 慈英雪 案例类型 婚房

设计理念:每一个案例都是一个故事,也是我们设计师最幸福的时刻,看着每一位业主住进我们双手打造的新居,那灿烂的笑容深烙心底。

客厅
第1张
第2张
第3张
卧室
第1张
第2张
卫生间
第1张
第2张
第3张
厨房
第1张
第2张
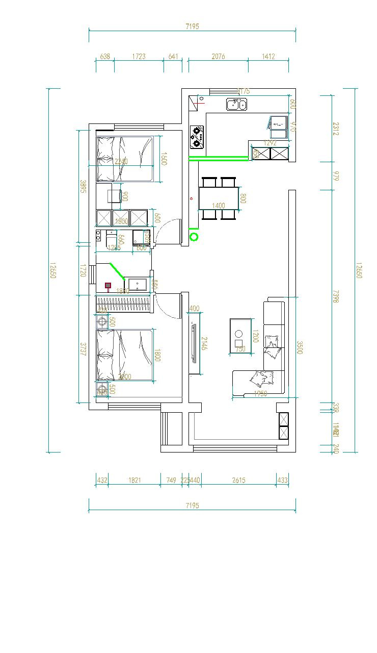
户型图
第1张
93平 -客餐厅 现代风格 3.jpg 华润二十四城-慈英雪93平 -客餐厅 现代风格 2.jpg 华润二十四城-慈英雪93平 -客餐厅 现代风格1.jpg

用白色调和房间的基调,一种高级感在空间展开。将电视柜设定为弱势方,沙发区作为强势方着重表达。挂画与地毯相呼应,从图片上迸发出一种视觉张力。

华润二十四城-慈英雪93平 次卧 现代风格.jpg 华润二十四城-慈英雪93平 -主卧 现代风格.jpg

卧室区域是主要休息放松的地方。主卧延续了整个户型优雅冷静的调性。

华润二十四城-慈英雪93平 -卫生间 现代风格 1.jpg 华润二十四城-慈英雪93平 -卫生间 现代风格 2.jpg 华润二十四城-慈英雪93平 -卫生间 现代风格3.jpg

卫生间拆除原本非沉重墙体,重新规划了动线,实现了洗簌、机洗、如厕、放在一起更为方便。

华润二十四城-慈英雪93平 -厨房 现代风格 2.jpg 华润二十四城-慈英雪93平 -厨房 现代风格1.jpg

餐厨区域以岛台为中心形成“回”字大厨房动线概念,厨房门摒弃了传统移门的形式采用了三轨联动推拉门可以将中西厨完美结合,可敞开,可分离,真正的做到了中西合璧,同时完全打开的状态下具备了更优良的通风效果!使的小空间得到完美的利用。

华润二十四城..93平   平面图.jpg

案例设计师

慈英雪

设计师:慈英雪

从业时间:8年

设计理念:做有情感的设计,做符合生活方式的设计,无限优化生活空间

预约设计师

算算你家装修多少钱

报名即享丰厚赠品,享半价装修

免费报价
咨询热线:400-656-9909
20190221103704574636.jpg

精品设计案例

20180612134930523248.jpg 服务号二维码.jpg