立即预约 立即预约
免费定制整装家居

免费定制整装家居

一站置家 全程无忧 一省到底
hide.png

当前位置: 首页 > 装修案例效果图 > 金地樾檀山|现代风格

金地樾檀山|现代风格 230平 现代简约风格效果图

收藏
案例风格 现代简约 案例户型 二居 案例面积 230平米
楼盘名称 金地樾檀山 设计师 林凤设计师 案例类型 改善性住宅

设计理念:这次设计客户为一对中年夫妇,业主思想上跟进潮流,现代风格在处理空间方面强调室内空间宽敞、室内通透,最大限度引入自然光。该案例以灰白为基调,为业主创造出舒适、自然的居住氛围。

客厅
第1张
第2张
第3张
第4张
餐厅
第1张
第2张
卧室
第1张
第2张
卫生间
第1张
厨房
第1张
书房
第1张
第2张
休闲区
第1张
第2张
门厅
第1张
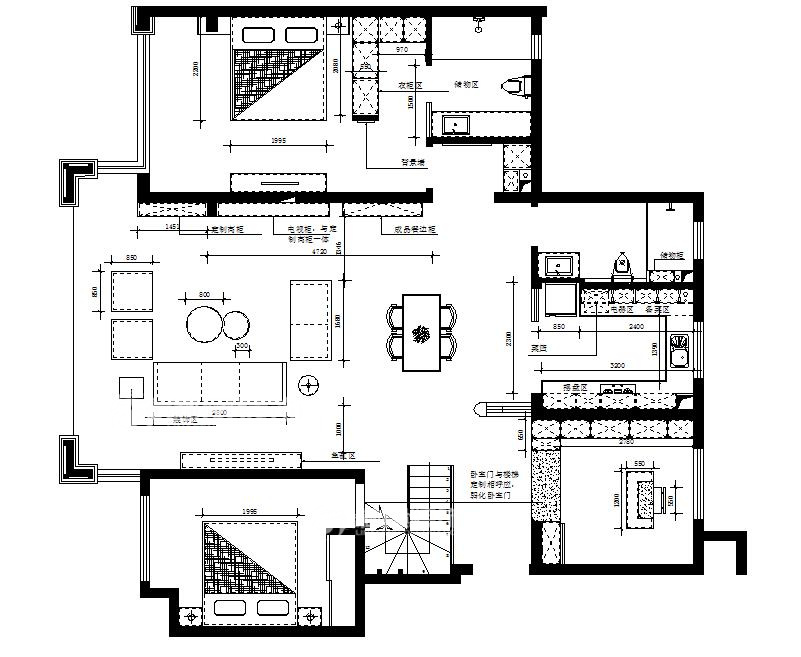
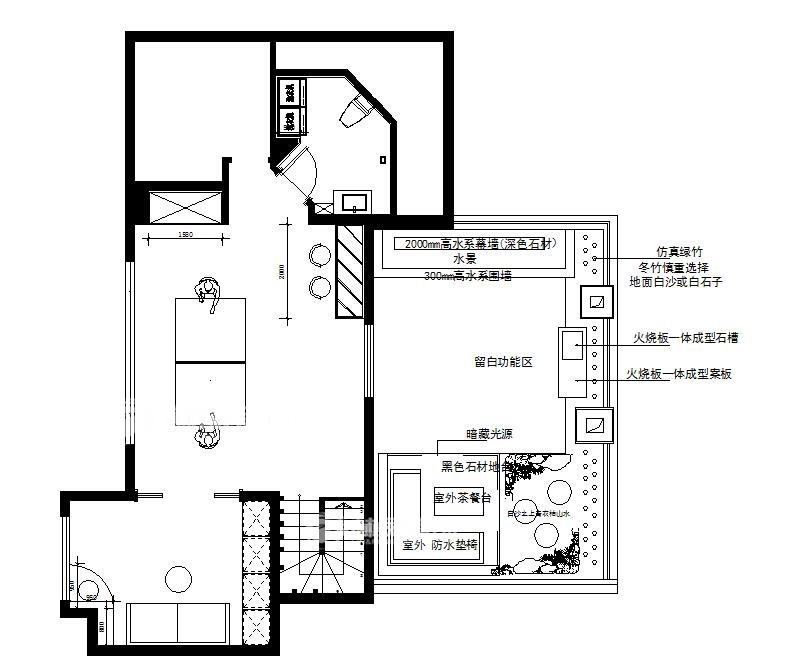
户型图
第1张
第2张
金地越檀山-230平-现代黑白灰-客餐厅.jpg 金地越檀山-230平-现代黑白灰-客厅1.jpg 金地越檀山-230平-现代黑白灰-客厅.jpg 金地越檀山-230平-现代黑白灰-客厅2.jpg

客厅主题色调偏暖,来增添客厅的整体质感,金属元素的运用,使本就没有过多造型的客厅,不会显得单调,色彩也更加突出。简单的配饰不会显得繁琐,也是凸显现代风格的重要因素。

金地越檀山-230平-现代黑白灰-餐厅.jpg 金地越檀山-230平-现代黑白灰-餐厅2.jpg

大理石的餐桌,以及餐桌下半部分的金属元素,使其更富有设计感,上方的餐吊更是在一定基础上给餐厅的整体风格加了分,在简单的基础上,通过软装的加持,渲染效果,让餐厅空间在视觉效果上,更加简约大气。

金地越檀山-230平-现代黑白灰-次卧.jpg 金地越檀山-230平-现代黑白灰-次卧室.jpg

主卧设有衣帽间,增加了储物空间,又使整体空间更加简洁,客床头的硬包设计,彰显大气。

金地越檀山-230平-现代黑白灰-次卫.jpg

客卫的手盆设计,在做到美观的同时,又方便了洗漱需求,旁边位置设置壁龛,方便平时放置一些洗漱用品,浴屏是直屏的设计,扩大淋浴空间,既做到了干湿分离,又使空间更加整洁明亮。

金地越檀山-230平-现代黑白灰-厨房.jpg

厨房为封闭式厨房,以灰色和白色为主,拉门采用联动式,增加客厅的采光。深浅搭配的柜体颜色,告别了单一颜色的沉闷和死板,更符合现代风格的简约和时尚。

金地越檀山-230平-现代黑白灰-书房.jpg 金地越檀山-230平-现代黑白灰-书房 (2).jpg 金地越檀山-230平-现代黑白灰-吧台休闲.jpg 金地越檀山-230平-现代黑白灰-娱乐区.jpg 金地越檀山-230平-现代黑白灰-玄关.jpg 金地越檀山-230平-现代黑白灰-户型图 (2).jpg 金地越檀山-230平-现代黑白灰-户型图.jpg

案例设计师

林凤设计师

设计师:林凤设计师

从业时间:0年

设计理念:

预约设计师

算算你家装修多少钱

报名即享丰厚赠品,品质装修

免费报价
咨询热线:400-656-9909
20190221103704574636.jpg

精品设计案例

20180612134930523248.jpg 服务号二维码.jpg