立即预约 立即预约
免费定制整装家居

免费定制整装家居

一站置家 全程无忧 一省到底
hide.png

当前位置: 首页 > 装修案例效果图 > 旭辉景宸府|现代轻奢

旭辉景宸府|现代轻奢 180平 轻奢风格效果图

收藏
案例风格 轻奢 案例户型 四居 案例面积 180平米
楼盘名称 旭辉景宸府 设计师 郑婷婷 案例类型 改善性住宅

设计理念:这是一套180㎡的住宅,面积开阔,采光良好;业主细节控、爱干净,喜欢超大的空间感;所以在房屋整体规划时,多采用简洁自然有质感的材质、通透布局、细节刻画,来呈现空间最佳的状态。

客厅
第1张
第2张
餐厅
第1张
卧室
第1张
第2张
卫生间
第1张
儿童房
第1张
过廊
第1张
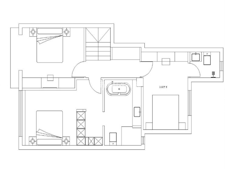
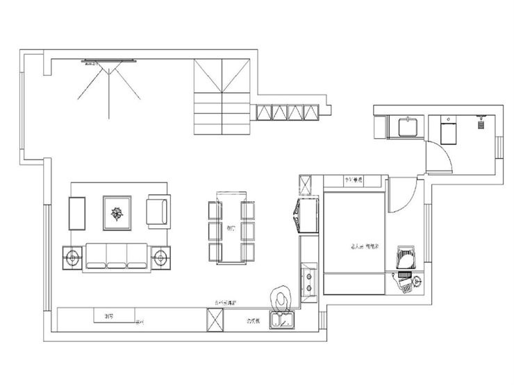
户型图
第1张
第2张
旭辉璟宸府-180平-现代风格-客厅.jpg 旭辉璟宸府-180平-现代风格-客厅2.jpg

客厅的设计难点在于钢琴和沙发的合理摆放,于是我做了沙发后一大面装饰柜,使钢琴在柜子之中。做成一个整体,使整个空间规范。保持大开间宽敞的视觉效果。

旭辉璟宸府-180平-现代风格-餐厅.jpg

餐厅与厨房整体设计,动线流畅,满足了很大操作空间。增添了生活趣味和储物空间。

旭辉璟宸府-180平-现代风格-老人房.jpg 旭辉璟宸府-180平-现代风格-主卧室.jpg

主卧为套间,带有独立的卫生间,门后设置衣帽间,睡眠区独立出来,营造静谧的空间感受。

旭辉璟宸府-180平-现代风格-卫生间.jpg

主卫瓷砖为大砖上墙,增加层次感。干湿分离,即美感又方便。

旭辉璟宸府-180平-现代风格-儿童房.jpg 旭辉璟宸府-180平-现代风格-过廊.jpg 旭辉璟宸府-180平-现代风格-平面二层.jpg 旭辉璟宸府-180平-现代风格-平面一层.jpg

案例设计师

郑婷婷

设计师:郑婷婷

从业时间:9年

设计理念:用心与住宅对话,交织出住宅中的灵魂所属

预约设计师

算算你家装修多少钱

报名即享丰厚赠品,品质装修

免费报价
咨询热线:400-656-9909
20190221103704574636.jpg

精品设计案例

20180612134930523248.jpg 服务号二维码.jpg