立即预约 立即预约
免费定制整装家居

免费定制整装家居

一站置家 全程无忧 一省到底
hide.png

当前位置: 首页 > 装修案例效果图 > 美的瀚悦府|现代简约

美的瀚悦府|现代简约 167平 现代简约风格效果图

收藏
案例风格 现代简约 案例户型 三居 案例面积 167平米
楼盘名称 美的瀚悦府 设计师 林凤设计师 案例类型 改善性住宅

设计理念:本案设计师从业主的客观诉求出发,设计了一套三口之家温馨的生活居住环境。

客厅
第1张
第2张
第3张
餐厅
第1张
第2张
卧室
第1张
卫生间
第1张
厨房
第1张
第2张
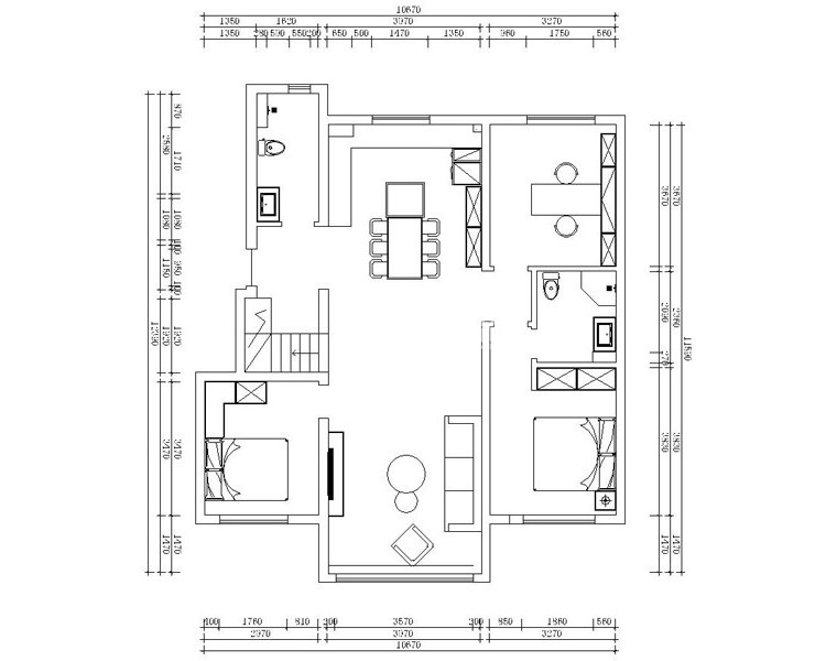
户型图
第1张
美的瀚悦府-167平-轻奢风格-客厅2.jpg 美的瀚悦府-167平-轻奢风格-客厅1.jpg 美的瀚悦府-167平-轻奢风格-主图.jpg

隐形门的设计方案兼并了理石背景墙的大宅设计方案,充分的客厅的整体空间感表现出来,大气且端庄典雅。

美的瀚悦府-167平-轻奢风格-餐厅1.jpg 美的瀚悦府-167平-轻奢风格-餐厅2.jpg

餐厅依托岛台,使餐厅空间得以划分,线性灯的搭配使整体空间的艺术感得以升华。

美的瀚悦府-167平-轻奢风格-主卧1.jpg

卧室轻取暖色调,使卧室充斥着满屋家的温馨感,现代简约感的挂画饰品与衣柜,又不失极简气质。

美的瀚悦府-167平-轻奢风格-厕所1.jpg

卫生间以钻石浴屏、坐便、洗手盆三部分组成,使卫生间空间大大的提高,给人一种舒适的感觉。

美的瀚悦府-167平-轻奢风格-厨房1.jpg 美的瀚悦府-167平-轻奢风格-厨房2.jpg

厨房采用开放式设计理念,酒柜冰箱高柜一体定制设计,使厨房达到开放式整体大气通透的预期效果。

美的瀚悦府-167平-轻奢风格-户型图.jpg

案例设计师

林凤设计师

设计师:林凤设计师

从业时间:0年

设计理念:

预约设计师

算算你家装修多少钱

报名即享丰厚赠品,品质装修

免费报价
咨询热线:400-656-9909
20190221103704574636.jpg

精品设计案例

20180612134930523248.jpg 服务号二维码.jpg