立即预约 立即预约
免费定制整装家居

免费定制整装家居

一站置家 全程无忧 一省到底
hide.png

当前位置: 首页 > 装修案例效果图 > 和泓长白府|法式轻奢

和泓长白府|法式轻奢 102平 轻奢风格效果图

收藏
案例风格 轻奢 案例户型 三居 案例面积 102平米
楼盘名称 和泓长白府 设计师 林凤设计师 案例类型 改善性住宅

设计理念:本案为法式轻奢风格,浪漫,优雅,打造独具一格的高尚格调。

客厅
第1张
第2张
餐厅
第1张
卧室
第1张
第2张
卫生间
第1张
厨房
第1张
书房
第1张
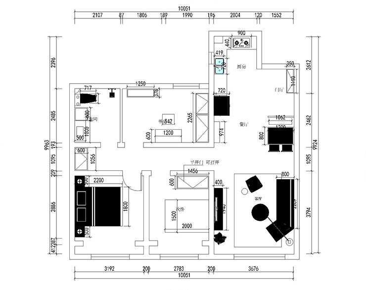
户型图
第1张
和泓长白府-102平-法式轻奢-客厅1.jpg 和泓长白府-102平-法式轻奢-客厅2.jpg

客餐厅格局方正,雕花线条的设计与温柔的奶油色完美融合,复古,时尚。

和泓长白府-102平-法式轻奢-餐厅.jpg

餐厅木质餐桌与金属吊灯搭配,彰显古典底蕴,又不脱轨现代元素设计。

和泓长白府-102平-法式轻奢-客卧.jpg 和泓长白府-102平-法式轻奢-主卧.jpg

柔软的软包床头,温柔的同色系,精致的小摆件,营造一个温馨有爱的生活氛围。

和泓长白府-102平-法式轻奢-卫生间.jpg

卫生间灰色墙地砖,搭配一面条纹墙砖,黑色花洒点缀,让空间不再单调。

和泓长白府-102平-法式轻奢-厨房.jpg

厨房深浅搭配的上下柜,压条的门板, 让整个空间更有层次感。

和泓长白府-102平-法式轻奢-书房.jpg 和泓长白府-102平-法式轻奢-平图.jpg

案例设计师

林凤设计师

设计师:林凤设计师

从业时间:5年

设计理念:为生活而设计,设计源于懂生活

预约设计师

算算你家装修多少钱

报名即享丰厚赠品,品质装修

免费报价
咨询热线:400-656-9909
20190221103704574636.jpg

精品设计案例

20180612134930523248.jpg 服务号二维码.jpg