立即预约 立即预约
免费定制整装家居

免费定制整装家居

一站置家 全程无忧 一省到底
hide.png

当前位置: 首页 > 装修案例效果图 > 华润公园九里|现代极简

华润公园九里|现代极简 260平 现代简约风格效果图

收藏
案例风格 现代简约 案例户型 复式 案例面积 260平米
楼盘名称 华润公园九里 设计师 肖婷婷 案例类型 改善性住宅

设计理念:业主注重整体感觉,颜色以原木色白色为主色调,配有一些木色护墙板作为点缀亮点,简约,空间感足,温馨感觉足,空间搭配有档次。

客厅
第1张
第2张
餐厅
第1张
卧室
第1张
第2张
卫生间
第1张
厨房
第1张
阳台
第1张
书房
第1张
休闲区
第1张
门厅
第1张
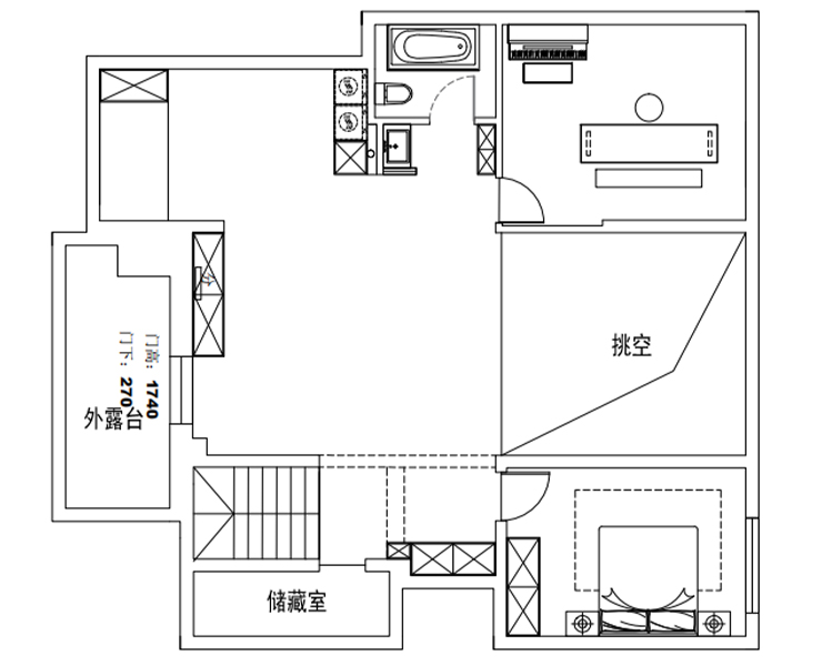
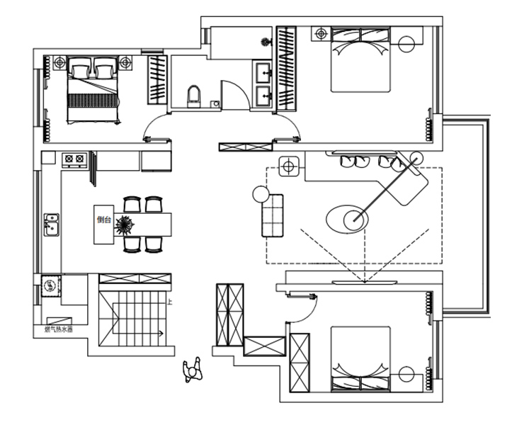
户型图
第1张
第2张
设计2部-肖婷婷-华润公园九里-256平-现代轻奢-沙发背景.jpg 设计2部-肖婷婷-华润公园九里-256平-现代轻奢-首图.jpg

客厅挑空设计,整体空间感强烈,配合理石造型背景墙厅整体效果大大提升,搭配部分木色护墙板造型,再空间冷色调的基础上多了一些暖色不会让整体感觉显得太硬朗。体现档次,简洁,大气,沙发背景和电视背景呼应整体色调。

设计2部-肖婷婷-华润公园九里-256平-现代轻奢-餐厅.jpg

餐厅颜色随着客厅整体呼应,和开放的厨房更加融为一体,加上纯色提升亮点,色彩丰富,功能完善,整体上一气呵成。

设计2部-肖婷婷-华润公园九里-256平-现代轻奢-卧室.jpg 设计2部-肖婷婷-华润公园九里-256平-现代轻奢-主卧.jpg

颜色上的搭配,家具的颜色,提高睡眠质量,床头墙面配有颜色,让业主在卧室感觉更为舒服,合理的摆放让卧室的空间看上不那么拥挤。

设计2部-肖婷婷-华润公园九里-256平-现代轻奢-卫生间.jpg

瓷砖采用整体灰颜色搭配上定制洗手盆台面理石饰面,定制的浴室柜大气, 实用,配上金属浴屏,档次各上了一个层次。

设计2部-肖婷婷-华润公园九里-256平-现代轻奢-厨房.jpg

开放厨房是业主喜欢的设计,橱柜整体储存空间强大,和餐厅客厅完美衔接,入户后空间感极强,达到业主对厨房功能和需求的满足。

设计2部-肖婷婷-华润公园九里-256平-现代轻奢-露台.jpg 设计2部-肖婷婷-华润公园九里-256平-现代轻奢-二楼书房.jpg 设计2部-肖婷婷-华润公园九里-256平-现代轻奢-二楼休息区.jpg 设计2部-肖婷婷-华润公园九里-256平-现代轻奢-门厅.jpg 设计2部-肖婷婷-华润公园九里-256平-现代轻奢-二层平面布置图.jpg 设计2部-肖婷婷-华润公园九里-256平-现代轻奢-一层平面布置图.jpg

案例设计师

肖婷婷

设计师:肖婷婷

从业时间:10年

设计理念:持之以恒的学习是设计的来源,责任感是设计的原则,而灵感是设计的升华。

预约设计师

算算你家装修多少钱

报名即享丰厚赠品,品质装修

免费报价
咨询热线:400-656-9909
20190221103704574636.jpg

精品设计案例

20180612134930523248.jpg 服务号二维码.jpg