立即预约 立即预约
免费定制整装家居

免费定制整装家居

一站置家 全程无忧 一省到底
hide.png

当前位置: 首页 > 装修案例效果图 > 华润翡翠城|现代简约

华润翡翠城|现代简约 350平 现代简约风格效果图

收藏
案例风格 现代简约 案例户型 复式 案例面积 350平米
楼盘名称 华润翡翠城 设计师 杨达 案例类型 改善性住宅

设计理念:本案采用现 代简约风格,简洁和有用是现代简约个性的基本特色,整体格局开阔,色彩搭配,空间布局合理,环境温馨,利用淡淡的家具布局把原有的空间净化,保证光源充足的同时显得高尚。

客厅
第1张
餐厅
第1张
卧室
第1张
第2张
第3张
卫生间
第1张
第2张
厨房
第1张
儿童房
第1张
休闲区
第1张
第2张
第3张
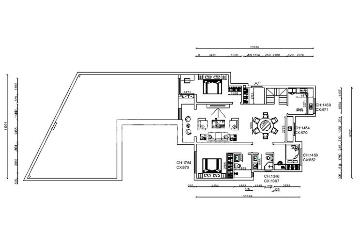
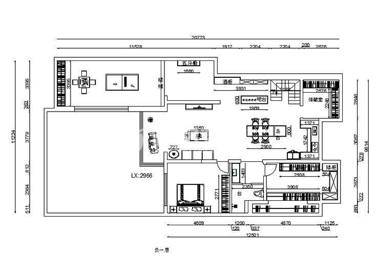
户型图
第1张
第2张
第3张
华润翡翠城-350平-现代简约风格-客厅.jpg

采用直线造型边棚来打造空间的延伸感,圈棚内增加双石膏板造型线条增加奢华感,主要采用灰色加原木色搭配体现自然气息的浓郁,更加凸显现代简约风格,背景墙造型显得空间丰富有格调又不显压抑,显得特别大气,整个客厅区域颜色搭配非常合理,比较柔和温馨且时尚给人带来舒适感。

华润翡翠城-350平-现代简约风格-餐厅.jpg

本方案餐厅临近厨房,增加用餐便捷,靠近窗户视野开阔明亮,窗户采用百叶窗,保证自然光源同时保障私密性,上方采用防潮石膏板平棚加筒灯加餐吊灯设计,具有营造氛围作用,光源充足,用餐环境更加舒适,吊柜面与餐桌色彩完美搭配,设计中最主要体现了空间大气的效果,与其他空间相呼应。

华润翡翠城-350平-现代简约风格-次卧.jpg 华润翡翠城-350平-现代简约风格-主卧1.jpg 华润翡翠城-350平-现代简约风格-主卧2.jpg

卧室采用护墙板加格栅背景墙与石膏线,空间利用率较高,大衣柜能够保证储藏空间,空间主要以灰白色为主,利用艺术吊灯增加氛围感。

华润翡翠城-350平-现代简约风格-主卫.jpg 华润翡翠城-350平-现代简约风格-次卫.jpg

卫生间,定制洗手盆,,智能马桶,深灰色墙砖搭配白色集成吊顶不会显得头重脚轻,反而会更有立体感,而且也会将整个卫生间的光线显得更加明亮。

华润翡翠城-350平-现代简约风格-厨房.jpg

L型橱柜,打造吊柜设计让厨房更干净 整洁空间看起来会更加宽敞,更有空间感,看着就很赏心悦目,搭配圆形餐桌,显得空间大气,高级时尚空间利用的非常好。

华润翡翠城-350平-现代简约风格-儿童房.jpg 华润翡翠城-350平-现代简约风格-娱乐区.jpg 华润翡翠城-350平-现代简约风格-品酒区.jpg 华润翡翠城-350平-现代简约风格-活动室.jpg 华润翡翠城-350平-现代简约风格-户型图负一.jpg 华润翡翠城-350平-现代简约风格-户型图一楼1.jpg 华润翡翠城-350平-现代简约风格-户型图负二.jpg

案例设计师

杨达

设计师:杨达

从业时间:10年

设计理念:精雕细琢,返璞归真。

预约设计师

算算你家装修多少钱

报名即享丰厚赠品,品质装修

免费报价
咨询热线:400-656-9909
20190221103704574636.jpg

精品设计案例

20180612134930523248.jpg 服务号二维码.jpg