立即预约 立即预约
免费定制整装家居

免费定制整装家居

一站置家 全程无忧 一省到底
hide.png

当前位置: 首页 > 装修案例效果图 > 华润公元九里|现代简约

华润公元九里|现代简约 110平 现代简约风格效果图

收藏
案例风格 现代简约 案例户型 三居 案例面积 110平米
楼盘名称 华润公元九里 设计师 孙安强 案例类型 改善性住宅

设计理念:本案采用现代简约风格设计,外观简洁,功能性强,没有过分的装饰,一切以功能出发,营造出一种温馨、安静的生活氛围,具有舒适与美观并存的感受,在配饰上延续了黑白灰的主色调,以简洁的造型、完美的细节创造出了比较前卫的感觉。

客厅
第1张
第2张
第3张
卧室
第1张
第2张
第3张
卫生间
第1张
第2张
厨房
第1张
第2张
衣帽间
第1张
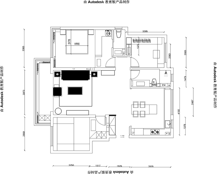
户型图
第1张
华润公元九里-110平-现代简约风格-客厅2.jpg 华润公元九里-110平-现代简约风格-客厅1.jpg 华润公元九里-110平-现代简约风格-首图.jpg

采用黑白灰为主调,墙面、顶棚、地面等均已简洁的造型、纯洁的质地为特征,平棚配上筒灯与线灯使客厅更加明亮整洁。

华润公元九里-110平-现代简约风格-卧室2.jpg 华润公元九里-110平-现代简约风格-卧室3.jpg 华润公元九里-110平-现代简约风格-卧室1.jpg

满足个人使用功能,简洁的柜台设计和灯具,利用线形灯和筒灯增加氛围感。

华润公元九里-110平-现卫生间2约风格-卫生间2.jpg 华润公元九里-110平-现代简约风格-卫生间1.jpg

卫生间,定制洗手盆,白灰色墙砖不仅体现出简约式风格的优雅,而且也会将整个卫生间的光线显得更加明亮。

华润公元九里-110平-现代简约风格-厨房2.jpg 华润公元九里-110平-现代简约风格-厨房1.jpg

厨房为开放性厨房,使整体空间宽敞大方,打造吊柜设计让厨房更干净,整洁空间看起来会更加明亮,更有空间感,看着就很赏心悦目。

华润公元九里-110平-现代简约风格-衣帽间.jpg 华润公元九里-110平-现代简约风格-户型图.jpg

案例设计师

孙安强

设计师:孙安强

从业时间:10年

设计理念:生活是创意的来源,创意源于文化,创意源于自己

预约设计师

算算你家装修多少钱

报名即享丰厚赠品,享半价装修

免费报价
咨询热线:400-656-9909
20190221103704574636.jpg

精品设计案例

20180612134930523248.jpg 服务号二维码.jpg