立即预约 立即预约
免费定制整装家居

免费定制整装家居

一站置家 全程无忧 一省到底
hide.png

当前位置: 首页 > 装修案例效果图 > 富都丽景|现代简约

富都丽景|现代简约 110平 现代简约风格效果图

收藏
案例风格 现代简约 案例户型 二居 案例面积 110平米
楼盘名称 富都丽景 设计师 李丹 案例类型 改善性住宅

设计理念:本案采用黑灰为主色调,打造一种既简约又不失韵味的感觉,总体感觉更温馨.更有结婚之后家的感觉,也让空间没有因为灰色的加入而缺失温馨的感觉。

客厅
第1张
第2张
第3张
餐厅
第1张
卧室
第1张
第2张
厨房
第1张
门厅
第1张
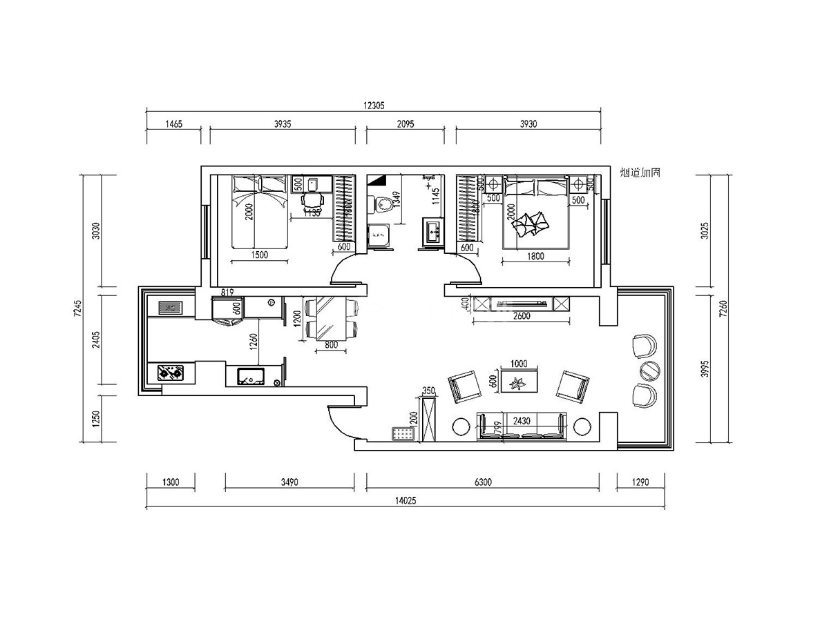
户型图
第1张
富都丽景-110平-现代简约-客厅 (2).jpg 富都丽景-110平-现代简约-客厅 (3).jpg 富都丽景-110平-现代简约-客厅.jpg

客厅与餐厅厨房打通形成互动空间,更大视野更开阔,门厅与客厅之间加了隔断。主要以颜色和装饰来点缀,既简洁又不失单调,深灰色和蓝灰色进行搭配作为整体风格的点缀色,让整体过渡的更加自然,不显突兀.提升了空间的造型感觉。

富都丽景-110平-现代简约-餐厅.jpg

餐厅空间与客厅在一个空间,独立的餐桌,使整个空间显得不那么拥挤,灯光以温馨为主。餐桌上方吊灯光线拉低.使得用餐时氛围更加温馨。

富都丽景-110平-现代简约-次卧.jpg 富都丽景-110平-现代简约-主卧.jpg

主卧室与整体风格保持一致,墙面上摆放了一些装饰画,床头柜上摆放了一些装饰,增加了空间的储物功能,使整个空间更加温馨;主要以棕色和白色为主,深灰色的地板,和客厅的颜色相呼应,一侧床头柜用书桌代替,使整个房间更加整齐。

富都丽景-110平-现代简约-厨房.jpg

厨房采用封闭式厨房,橱柜采用平板门无拉手,更现代美观感觉.,上柜下柜颜色不统一,采用灰白来进行搭配,采用白色台面和理石墙砖,让整个空间更大气。

富都丽景-110平-现代简约-门厅.jpg 富都丽景-110平-现代简约-平面图.jpg

案例设计师

李丹

设计师:李丹

从业时间:5年

设计理念:用我的专业和你的想法,打造专业的家

预约设计师

算算你家装修多少钱

报名即享丰厚赠品,品质装修

免费报价
咨询热线:400-656-9909
20190221103704574636.jpg

精品设计案例

20180612134930523248.jpg 服务号二维码.jpg