立即预约 立即预约
免费定制整装家居

免费定制整装家居

一站置家 全程无忧 一省到底
hide.png

当前位置: 首页 > 装修案例效果图 > 万家福生活广场|现代简约

万家福生活广场|现代简约 290平 现代简约风格效果图

收藏
案例风格 现代简约 案例户型 三居 案例面积 290平米
楼盘名称 万家福生活广场 设计师 吴勇 案例类型 改善性住宅

设计理念:本案例设计风格为现代简约,经过前期和客户的沟通,整体格局开阔,色彩搭配,空间布局合理,环境温馨,利用淡淡的家具布局把原有的空间净化,保证光源充足的同时显得高尚。

客厅
第1张
第2张
卧室
第1张
第2张
第3张
第4张
卫生间
第1张
第2张
第3张
厨房
第1张
过廊
第1张
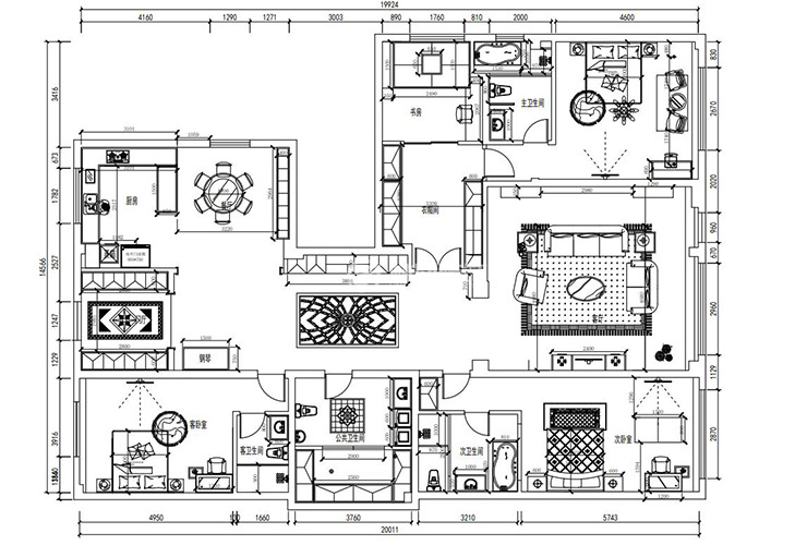
户型图
第1张
万家福生活广场-120平-客厅.jpg 万家福生活广场-120平-客厅1.jpg

本案户型客厅主要是空间宽敞,电视背景墙采用墙板,上面的灯带虚光增加高级感,客厅采用多装饰画增加高级感,新颖时尚。客厅整体颜色柔和温馨,给人舒适感。

万家福生活广场-120平-次卧.jpg 万家福生活广场-120平-客卧.jpg 万家福生活广场-120平-卧室.jpg 万家福生活广场-120平-主卧.jpg

色彩的运用在装修手法上显得尤为重要,卧室背景墙采用蓝色和木材原色作为搭配,书柜和电脑桌占据大部分空间,空间利用率高不显得空旷,具有学习氛围,大衣柜保证储藏空间。

万家福生活广场-120平-次卫.jpg 万家福生活广场-120平-公卫.jpg 万家福生活广场-120平-主卫.jpg

卫生间洗手台前放置大浴室镜,马桶与浴缸,马桶和洗手台之间都有隔断,将空间划分明确,相互使用不受影响,整体光源充足,浴缸边做壁龛,洗浴用品触手可得。

万家福生活广场-120平-厨房.jpg

L型橱柜加岛台形成U型空间,整体宽敞,布局合理,符合中国人做饭洗切炒的流程,橱柜采用白色,简约大气,长墙砖和集成吊顶也符合当下流行材料,耐用好看节约成本。

万家福生活广场-120平-过廊.jpg 万家福生活广场-120平-户型图.jpg

案例设计师

吴勇

设计师:吴勇

从业时间:11年

设计理念:用抽象的思维去设计形象的事物

预约设计师

算算你家装修多少钱

报名即享丰厚赠品,享半价装修

免费报价
咨询热线:400-656-9909
20190221103704574636.jpg

精品设计案例

20180612134930523248.jpg 服务号二维码.jpg