立即预约 立即预约
免费定制整装家居

免费定制整装家居

一站置家 全程无忧 一省到底
hide.png

当前位置: 首页 > 装修案例效果图 > 恒大御峰|现代简约

恒大御峰|现代简约 220平 现代简约风格效果图

收藏
案例风格 现代简约 案例户型 二居 案例面积 220平米
楼盘名称 恒大御峰 设计师 罗霄 案例类型 改善性住宅

设计理念:本案设计围绕简约不简单、美观又实用的设计理念,在满足功能需求的情况下,将空间、人与物进行精致的组合,精简的材质修饰丰富空间效果,为业主打造一个时尚前卫的舒适之家。

客厅
第1张
第2张
第3张
餐厅
第1张
卧室
第1张
第2张
第3张
卫生间
第1张
阳台
第1张
第2张
第3张
休闲区
第1张
第2张
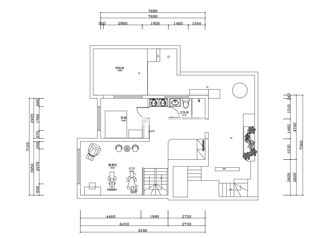
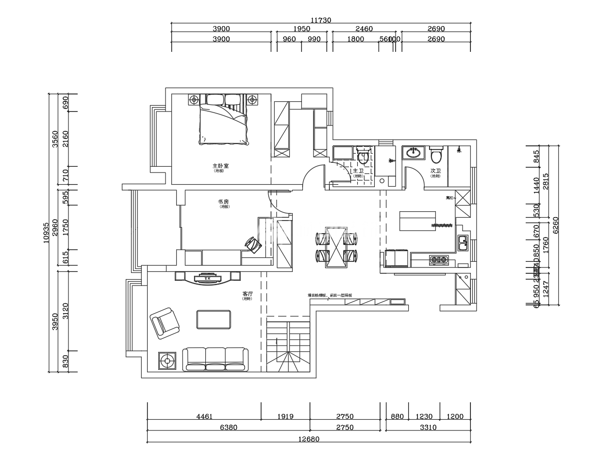
户型图
第1张
第2张
恒大御峰-220平-现代简约-客厅.jpg 恒大御峰-220平-现代简约-客厅1.jpg 恒大御峰-220平-现代简约-客厅3.jpg

客厅整体依然采用了现代风格的黑白灰色彩构成形式,为了让空间能够更加自然,材料上运用了天然石材、木饰、面砖等材料,棚顶更是通过黑色金属线条来点缀整体的空间效果,白色叠级吊顶形成对比,附加虚光灯带烘托氛围,在整体的立体呈现上能够更加有层次感。

恒大御峰-220平-现代简约-首图.jpg

餐厅的整体效果与客厅保持一致,为了能够让家具软装完美的凸显出现代效果,所以在家具的选择上选择了极致简单的造型搭配,包括在餐吊、桌腿等配饰上,餐边柜的材质也是运用了具有高光的反光特点的材质,能过衬托出整体的餐厅效果。

恒大御峰-220平-现代简约-次卧 .jpg 恒大御峰-220平-现代简约-二楼卧室.jpg 恒大御峰-220平-现代简约-主卧.jpg

卧室的整体色彩氛围采用了三种颜色来把控,主色依然是灰色为主来进行打底,分别在床头背景和墙面修饰上,木纹色则是运用在了家具衣柜上,木纹色当做辅助色来进行过渡,最后的点缀色则是运用在了吊顶上,黑色的金属线条修饰了空间的整体效果。

恒大御峰-220平-现代简约-卫生间.jpg

卫生间主体全部使用灰色面砖进行修饰,浴屏的形式采用最简单的钢化玻璃与极简金属边框进行制作,充满现代风格的家具特点,能够给业主带来前卫、不受拘束的时尚之感。

恒大御峰-220平-现代简约-露台无顶 (2).jpg 恒大御峰-220平-现代简约-露台无顶.jpg 恒大御峰-220平-现代简约-露台.jpg 恒大御峰-220平-现代简约-健身.jpg 恒大御峰-220平-现代简约-健身房.jpg 恒大御峰-220平-现代简约-平面图 (2).png 恒大御峰-220平-现代简约-平面图.png

案例设计师

罗霄

设计师:罗霄

从业时间:17年

设计理念:唯有我的设计,方显你家的与众不同。

预约设计师

算算你家装修多少钱

报名即享丰厚赠品,品质装修

免费报价
咨询热线:400-656-9909
20190221103704574636.jpg

精品设计案例

20180612134930523248.jpg 服务号二维码.jpg