立即预约 立即预约
免费定制整装家居

免费定制整装家居

一站置家 全程无忧 一省到底
hide.png

当前位置: 首页 > 装修案例效果图 > 万达公园ONE|现代轻奢

万达公园ONE|现代轻奢 120平 轻奢风格效果图

收藏
案例风格 轻奢 案例户型 三居 案例面积 120平米
楼盘名称 万达公园.ONE 设计师 杨达 案例类型 改善性住宅

设计理念:本案采用现代轻奢设计,线条清晰,整体格局开阔,色彩搭配,多使用灰白色为主色蓝色进行装饰,体现出现代风格的特点,具有时尚感。

客厅
第1张
第2张
餐厅
第1张
卧室
第1张
第2张
第3张
卫生间
第1张
厨房
第1张
门厅
第1张
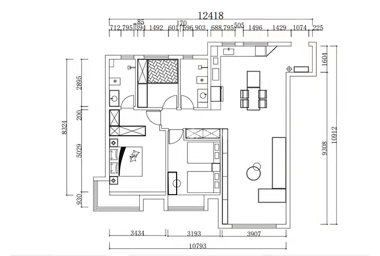
户型图
第1张
万达公园ONE-120平-现代轻奢风格-客厅.jpg 万达公园ONE-120平-现代轻奢风格-首页.jpg

本案户型客厅主要是空间宽敞,采用直线造型边棚来打造空间的延伸感,主要采用灰白色体现自然气息的浓郁,电视背景墙左右做柜子开放格显得大气可存放大量的物品,实用好看,灰白搭配绿色沙发显得更加时尚感。

万达公园ONE-120平-现代轻奢风格-餐厅.jpg

餐厅为餐桌与岛台相结合,简单大方的效果符合现代的整体风格,上方做有平棚吊灯,餐桌带有金属条设计更能体现现代轻奢风格与其他空间相呼应。

万达公园ONE-120平-现代轻奢风格-次卧.jpg 万达公园ONE-120平-现代轻奢风格-儿童房.jpg 万达公园ONE-120平-现代轻奢风格-主卧.jpg

吊棚做石膏角线加主灯比较简约,做有衣帽间,比较宽敞明亮,卧室铺设地板与墙面色彩搭配恰到好处,墙面用带有金属边装饰画显现现代轻奢风格,整体效果大气明亮。

万达公园ONE-120平-现代轻奢风格-卫生间.jpg

卫生间,定制洗手盆,智能马桶,金属花洒,白灰色墙砖不仅体现出现代风格的优雅,而且也会将整个卫生间的光线显得更加明亮。

万达公园ONE-120平-现代轻奢风格-厨房.jpg

厨房为开放式厨房,L型橱柜,内嵌冰箱,打造吊柜设计让厨房更干净,设计合理, 整洁空间看起来更有空间感,看着就很赏心悦目。

万达公园ONE-120平-现代轻奢风格-玄关.jpg 万达公园ONE-120平-现代轻奢风格-户型图.jpg

案例设计师

杨达

设计师:杨达

从业时间:10年

设计理念:精雕细琢,返璞归真。

预约设计师

算算你家装修多少钱

报名即享丰厚赠品,享半价装修

免费报价
咨询热线:400-656-9909
20190221103704574636.jpg

精品设计案例

20180612134930523248.jpg 服务号二维码.jpg