立即预约 立即预约
免费定制整装家居

免费定制整装家居

一站置家 全程无忧 一省到底
hide.png

当前位置: 首页 > 装修案例效果图 > 龙湖舜山府|现代简约

龙湖舜山府|现代简约 220平 现代简约风格效果图

收藏
案例风格 现代简约 案例户型 二居 案例面积 220平米
楼盘名称 龙湖舜山府 设计师 孙安强 案例类型 改善性住宅

设计理念:本案是现代简约风格,实用、简洁、功能性强,营造出一种温馨、安静的生活氛围,白亮光系列的家具,独特的光泽使家具倍感时尚,具有舒适与美观并存的感受,在配饰上延续了黑白灰的主色调,以简洁的造型、完美的细节创造出了比较前卫的感觉。

龙湖舜山府-220平-现代简约风格-首图.jpg 龙湖舜山府-220平-现代简约风格-客厅.jpg

米色沙发搭配大理石背景墙,使整个客厅看起来温馨、简约,平棚配上筒灯与线灯使客厅更加明亮整洁,沙发背后安放工作台增加使用面积的同时使客厅更加规整、整齐。

龙湖舜山府-220平-现代简约风格-餐厅1.jpg 龙湖舜山府-220平-现代简约风格-餐厅2.jpg 龙湖舜山府-220平-现代简约风格-餐厅3.jpg

餐厅的灯光不能太强也不能太弱,顶部做了简单的筒灯使空间变得开阔明朗,在餐桌旁的墙面上做一排酒柜以增加餐厅的情调,而餐桌上的绿植则起了画龙点睛的作用,使环境充满生机与活力。

龙湖舜山府-220平-现代简约风格-卧室1.jpg 龙湖舜山府-220平-现代简约风格-卧室2.jpg 龙湖舜山府-220平-现代简约风格-卧室3.jpg 龙湖舜山府-220平-现代简约风格-卧室4.jpg

灯光以温馨和暖的黄色为基调,顶部做了简单的吊顶,墙面贴了局部壁纸,墙面壁画点缀使整个空间具有美观和实用性。

龙湖舜山府-220平-现代简约风格-卫生间.jpg 龙湖舜山府-220平-现代简约风格-卫生间2.jpg 龙湖舜山府-220平-现代简约风格-卫生间3.jpg

线条简约流畅,智能镜加智能坐便彰显大气简约,墙边作柜增加卫生间储藏空间。

龙湖舜山府-220平-现代简约风格-厨房.jpg

U型操作台使用空间加到最大,白色橱柜使厨房空间更加干净整洁,嵌入式冰箱即不占据空间还能为厨房增加色彩。

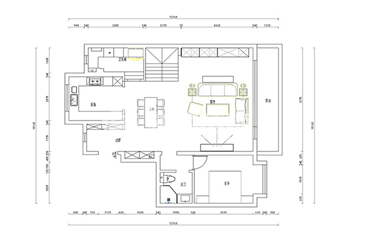
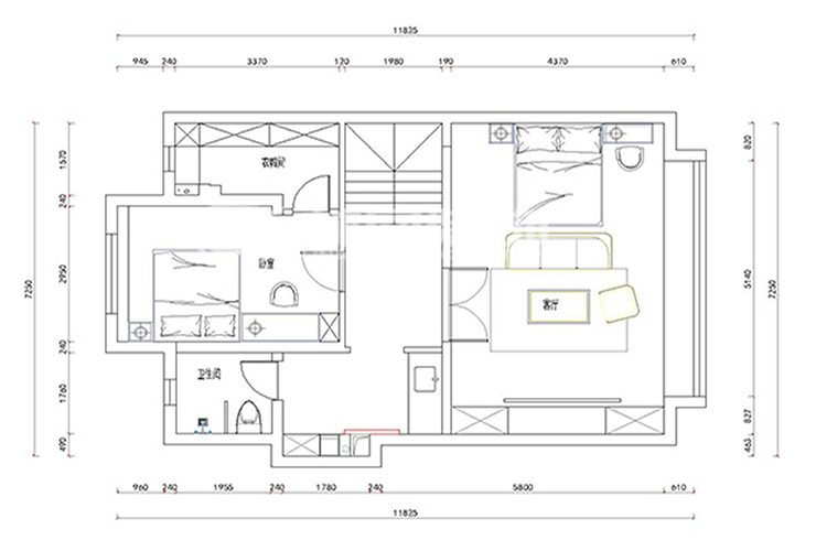
龙湖舜山府-220平-现代简约风格-户型图1.jpg 龙湖舜山府-220平-现代简约风格-户型图2.jpg

案例设计师

孙安强

设计师:孙安强

从业时间:10年

设计理念:生活是创意的来源,创意源于文化,创意源于自己

预约设计师

算算你家装修多少钱

报名即享丰厚赠品,享半价装修

免费报价
咨询热线:400-656-9909
20190221103704574636.jpg

精品设计案例

20180612134930523248.jpg 服务号二维码.jpg