立即预约 立即预约
免费定制整装家居

免费定制整装家居

一站置家 全程无忧 一省到底
hide.png

当前位置: 首页 > 装修案例效果图 > 华发全运首府|现代简约

华发全运首府|现代简约 130平 现代简约风格效果图

收藏
案例风格 现代简约 案例户型 二居 案例面积 130平米
楼盘名称 华发全运首府 设计师 仲崇彤 案例类型 改善性住宅

设计理念:本案设计简单,围绕着一个字(敞)来拓展的设计。

客厅
第1张
第2张
餐厅
第1张
卧室
第1张
第2张
卫生间
第1张
第2张
厨房
第1张
门厅
第1张
户型图
第1张
S1-仲崇彤-华发全运首府-130平-现代风格-客厅.jpg S1-仲崇彤-华发全运首府-130平-现代风格-客厅2.jpg

客厅打开了,与原有的南次卧打通了,组合成了一个开敞的客厅与休闲区,背景墙岩板造型与格栅的配搭,颜色略深邃,无主灯设计光线照明,呼应风格,做了灯带灯设计。

S1-仲崇彤-华发全运首府-130平-现代风格-餐厅.jpg

餐厅不用正规餐桌,采用定制效果,呼应风格做了阶梯层次设计。

S1-仲崇彤-华发全运首府-130平-现代风格-首图.jpg S1-仲崇彤-华发全运首府-130平-现代风格-卧室.jpg

主卧室:简,背景墙直线条设计,凸显举家,因为卧室同样也用了无主灯设计,这样的线条与棚顶设计,层次不同,线条流畅。北卧室:预留出来这个房间也是作为客房来使用,留出来一排书柜,外加一张床,平时没有人居住的时候这个房间总是会拿来看书,增加知识储备。

S1-仲崇彤-华发全运首府-130平-现代风格-卫生间.jpg S1-仲崇彤-华发全运首府-130平-现代风格-卫生间2.jpg

主要颜色采用墨兰的瓷砖与水磨石结合,看起来更加区别普通风格的大胆,颜色呼应,很喜欢这种跳跃式设计,让空间充满好奇。

S1-仲崇彤-华发全运首府-130平-现代风格-厨房.jpg S1-仲崇彤-华发全运首府-130平-现代风格-门厅.jpg

从色彩考虑,搭配整体风格,从造型考虑现代极简到了极致,从实用考虑,储物空间很大。

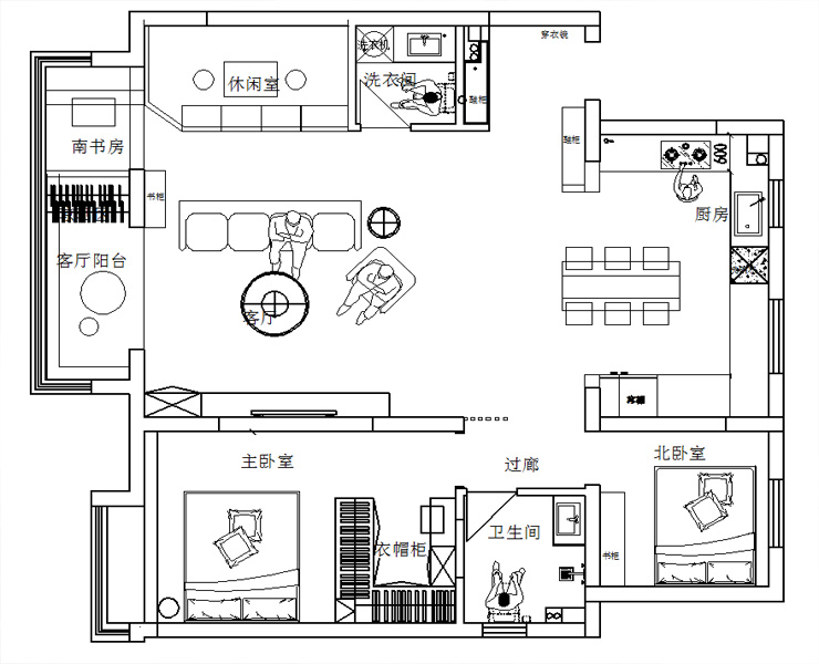
S1-仲崇彤-华发全运首府-130平-现代风格-户型图.jpg

案例设计师

仲崇彤

设计师:仲崇彤

从业时间:15年

设计理念:设计就是着重于点、线、面的灵活运用,把整个环境营造出家的温馨。

预约设计师

算算你家装修多少钱

报名即享丰厚赠品,享半价装修

免费报价
咨询热线:400-656-9909
20190221103704574636.jpg

精品设计案例

20180612134930523248.jpg 服务号二维码.jpg