立即预约 立即预约
免费定制整装家居

免费定制整装家居

一站置家 全程无忧 一省到底
hide.png

当前位置: 首页 > 装修案例效果图 > 天河家园|现代简约

天河家园|现代简约 100平 现代简约风格效果图

收藏
案例风格 现代简约 案例户型 二居 案例面积 100平米
楼盘名称 天河家园 设计师 刘云静 案例类型 改善性住宅

设计理念:让其空间发挥出它的优势,整体呈现出的效果物尽其用,又不过为复杂。

客厅
第1张
第2张
第3张
第4张
第5张
餐厅
第1张
卧室
第1张
第2张
卫生间
第1张
第2张
厨房
第1张
第2张
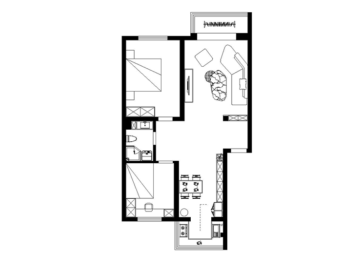
户型图
第1张
天河家园-100平-现代风格- 客厅.jpg 天河家园-100平-现代风格-客 厅.jpg 天河家园-100平-现代风格-客 厅-首图.jpg 天河家园-100平-现代风格-客厅.jpg 天河家园-100平-现代风格-客 厅.jpg

客厅不是特别大的 所以要把客厅的干净整洁及合理性体现出来,适当的留白处理会让空间更加美观。

天河家园-100平-现代风格-餐厅.jpg

餐厅最有特点的是软装的搭配及灯光的突出,提升了餐厅的质感,也便于日常的使用。

天河家园-100平-现代风格- 主卧.jpg 天河家园-100平-现代风格-次卧.jpg

卧室作为休息睡眠的空间没有过多的颜色修饰,整体饱和度偏暖,希望为业主提供更加柔和的睡眠空间。

天河家园-100平-现代风格-卫 生间.jpg 天河家园-100平-现代风格-卫生 间.jpg

此空间在手盆左侧加壁龛,充足利用空间,整个空间的搭配凸显出高级和实用性,对生活的提供了便利。

天河家园-100平-现代风格-厨 房.jpg 天河家园-100平-现代风格-厨房.jpg

厨房利用阳台位置,窗户视野广,色彩搭配让原本油腻的厨房空间变得温馨,相信在此业主会有更享受的烹饪体验。

天河家园-100平-现代风格-户型图.jpg

案例设计师

刘云静

设计师:刘云静

从业时间:10年

设计理念:在我的世界里,设计不仅是视觉的艺术,更是情感的传递与文化的融合。

预约设计师

算算你家装修多少钱

报名即享丰厚赠品,品质装修

免费报价
咨询热线:400-656-9909
20190221103704574636.jpg

精品设计案例

20180612134930523248.jpg 服务号二维码.jpg