立即预约
免费定制整装家居
一站置家 全程无忧 一省到底
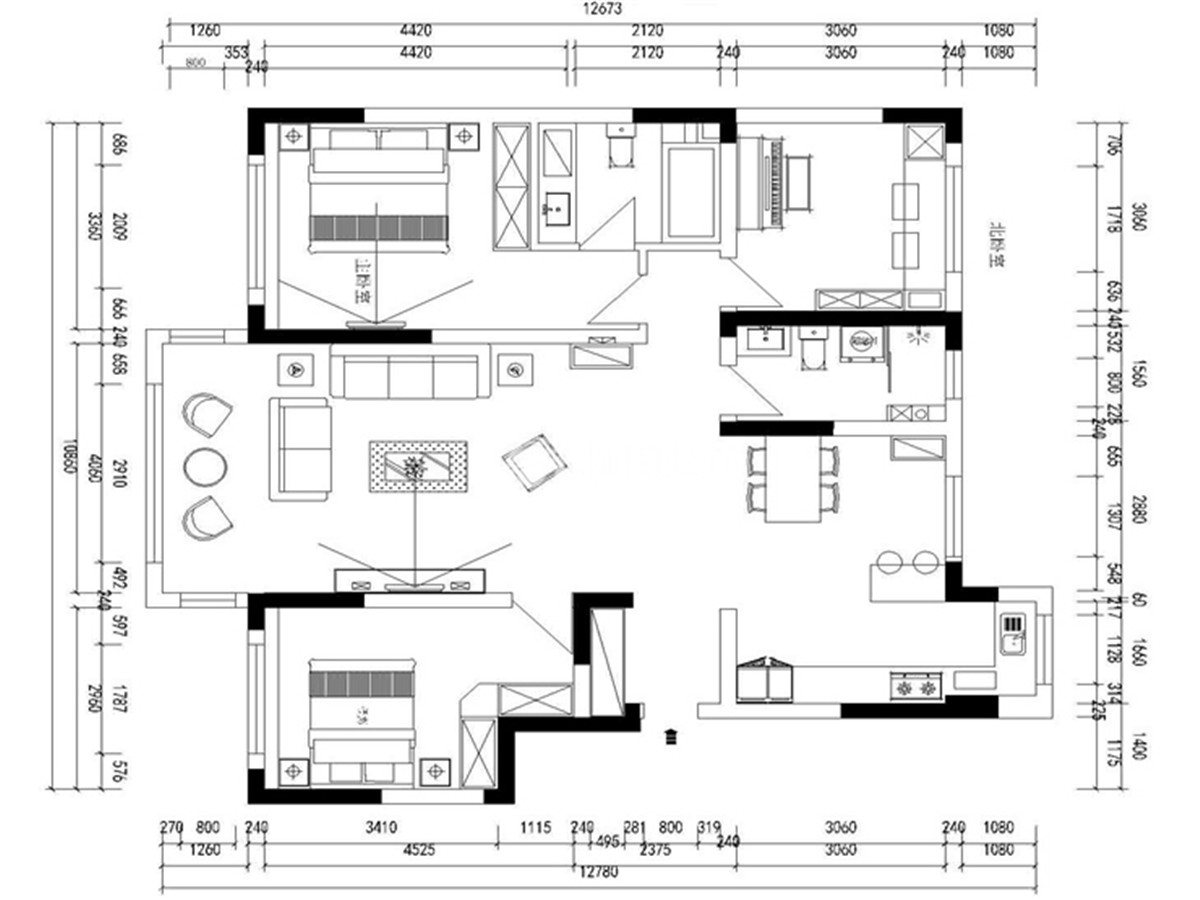
设计理念:本案是现代风格,采用简约的线条,比较符合年轻人的审美,让空间看上去非常大气,轻装修, 重装饰,用颜色和软装贯穿整个空间。
客厅的电视背景墙采用的是乳胶漆调色,沙发背景墙背景只刷了白色乳胶漆,放一组现在简约装饰挂画,显得更加简约自然,全屋棚线采用双眼皮 简洁明快。客厅含有布艺、木质、显得客厅更加丰富与质朴
餐厅上方采用单独的棚线 ,显示了餐厅的独立性,配以理石的餐桌更加彰显高贵,外加吊灯烘托氛围,使就餐区更加温馨。
卧室墙面采用乳胶漆。衣柜都采用全屋定制,增加收纳,整体造型感加强,营造温馨的氛围。卧室棚顶造型都是运用了简单的双眼皮造型,显得空间更加层次分明,使空间更加灵活
卫生间梳妆镜采用了定制镜柜,增加了女主人化妆品的储物。淋浴区采用浴缸,使一天繁忙的工作之后回家也能更加的放松
厨房设计的开放式开放式厨房,并且与吧台相连接,以及搭配烤箱,蒸箱,洗碗机等电器,更加丰富了厨房的功能。
书房采用定制书柜,增加了储物空间,使工作区域更加舒适
精品设计案例
设计说明:
三室两厅一厨两卫,高层整体采用美式风格,色调以深色为主,体现美式的居家感和温馨感。
设计说明:
本案业主为年轻时尚小两口,所以我们考虑到未来想要给未来宝宝一个温馨舒适的一个房间,所以本案整体采用现代风格的手法,运用颜色,来打造整体空间的设计感及时尚感
设计说明:
本案以北欧风格为主题的设计,北欧风格能以现代、简洁、自然的特点俘获人心,所营造出来的生活氛围会让人倍感舒适与自在。
设计说明:
客户是一名成功人士,对于家的执念就是简单干净,客户衣服比较多,所以把每个空间都做了大衣柜,并且融入到设计里