立即预约 立即预约
免费定制整装家居

免费定制整装家居

一站置家 全程无忧 一省到底
hide.png

当前位置: 首页 > 装修案例效果图 > 华发岭南荟

华发岭南荟 133平 美式风格效果图

收藏
案例风格 美式 案例户型 三居 案例面积 133平米
楼盘名称 华发岭南荟 设计师 吴勇 案例类型 改善性住宅

设计理念:本案设计以新美式风格为主,美式风格给人一种陈旧感,较压抑,新美式风格采用大量的鲜明的色彩手法,让整个空间色彩亮丽起来。

客厅
第1张
第2张
第3张
第4张
餐厅
第1张
第2张
第3张
卧室
第1张
卫生间
第1张
厨房
第1张
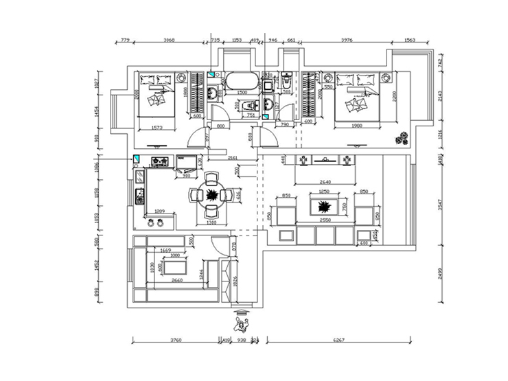
户型图
第1张
  • 案例详情

吴勇-华发岭南荟133-新美式-客厅4.jpg 吴勇-华发岭南荟133-新美式-客厅1.jpg 吴勇-华发岭南荟133-新美式-客厅2.jpg 吴勇-华发岭南荟133-新美式-客厅3.jpg

客厅棚顶采用非常简单的成品石膏线,让整体空间变得非常通透起来,不采用过多的吊顶手法,可以让整体空间变得宽敞起来。采用了许多颜色较浅的颜色,让整体空间色彩感不压抑。

吴勇-华发岭南荟133-新美式-餐厅3.jpg 吴勇-华发岭南荟133-新美式-餐厅1.jpg 吴勇-华发岭南荟133-新美式-餐厅2.jpg

餐厅餐桌采用圆桌,圆桌给人的感觉十分的温馨,加上原木色,让整个空间颜色不那么跳跃,两边的柜子与餐桌相呼应,整体空间都是原木色显得太压抑,所以餐椅的颜色采用浅蓝色。

吴勇-华发岭南荟133-新美式-卧室.jpg

卧室的壁纸采用米黄色,米黄色给人一种温馨舒适感。窗帘颜色较深与床头相呼应,床单颜色采用白色圆纹装,让整体空间色彩搭配有深又浅,色彩相互呼应。

吴勇-华发岭南荟133-新美式-卫生间.jpg

卫生间的地砖采用仿古砖,体现出美式的元素,而且达到了防滑的作用。墙砖采用相对地砖较小的砖。让墙与地有很明显的划分。

吴勇-华发岭南荟133-新美式-厨房.jpg

厨房采用开放式厨房,这样南北通透性很明显的体现出来,让整体空间变得十分宽敞,整体砖的颜色较浅,加上深色原木色,整体空间色彩给人一种温馨舒适的感觉。

吴勇-华发岭南荟133-新美式-平面图.jpg

案例设计师

吴勇

设计师:吴勇

从业时间:11年

设计理念:用抽象的思维去设计形象的事物

预约设计师

算算你家装修多少钱

报名即享丰厚赠品,享半价装修

免费报价
咨询热线:400-656-9909
20190221103704574636.jpg

精品设计案例

20180612134930523248.jpg 服务号二维码.jpg