立即预约 立即预约
免费定制整装家居

免费定制整装家居

一站置家 全程无忧 一省到底
hide.png

当前位置: 首页 > 装修案例效果图 > 泰莱·白金湾|现代简约

泰莱·白金湾|现代简约 195平 现代简约风格效果图

收藏
案例风格 现代简约 案例户型 三居 案例面积 195平米
楼盘名称 泰莱·白金湾 设计师 林凤设计师 案例类型 改善性住宅

设计理念:整个空间以温暖、舒适为侧重点,根据需求细分功能,因地制宜构筑更贴合场景的空间,注入温暖的秋意,圈画浪漫的生活场景。让一切繁杂由此退去,还原一处安静轻松、自然舒缓的宜居空间。

客厅
第1张
第2张
第3张
餐厅
第1张
卧室
第1张
卫生间
第1张
第2张
厨房
第1张
儿童房
第1张
第2张
第3张
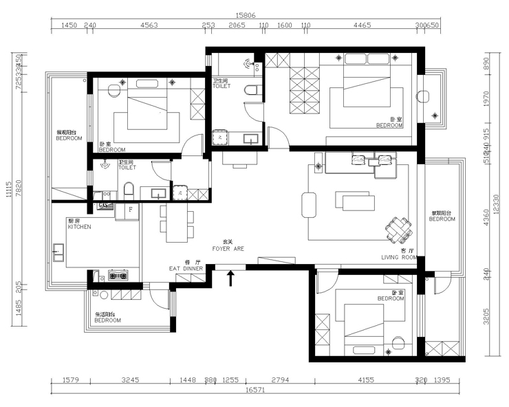
户型图
第1张
泰莱白金湾-195平-现代风格-客厅-2.jpg 泰莱白金湾-195平-现代风格-客厅.jpg 泰莱白金湾-195平-现代风格-首图.jpg

翻开家的扉页,客厅是一章饱含温度与情感的诗篇,几分现代居所的高级大气,混合些许艺术美宅的闲情雅趣,不同的材质相互搭配,通过肌理与质感的融合,收与放之间,组构成向往生活的场景。沙发与大理石茶几组合以其线条与曲面的互搭,巧妙而和谐。

泰莱白金湾-195平-现代风格-餐厅.jpg

餐厅位于厨房与客厅之间,动线流畅,并设计配套橱柜,一柜多用。颇具情调的挂画将餐厅的质感与气质无痕串联,让烟火气与仪式感放置在同一片天地。最大化利用空间尺度,流畅利落的线性分隔体块,让功能属性与美学概念完美糅合。

泰莱白金湾-195平-现代风格-主卧.jpg

主卧带有独立的卫生间,摩登又不失优雅的构思,从主卧空间每一处巧妙的线条勾勒与色彩碰撞开始。浓郁艺术的抽象挂画直观地表达了生活态度和个性,垂落的精致线条壁灯,莹莹灯火挥洒在素简的床头,在车水马龙的城市,给予主人一处具有艺术气质的休憩之所。

泰莱白金湾-195平-现代风格-主卧卫生间.jpg 泰莱白金湾-195平-现代风格-公共卫生间.jpg

主卫瓷砖为通体版,提升空间视觉效果。有条不紊、整齐有序,是屋主喜欢的家居环境。宽敞通透的自然气息,使空间传递出悠扬惬意的纯净氛围,尤其抚慰人心。。

泰莱白金湾-195平-现代风格-厨房.jpg 泰莱白金湾-195平-现代风格-女儿房-1.jpg 泰莱白金湾-195平-现代风格-女儿房-2.jpg 泰莱白金湾-195平-现代风格-女儿房-3.jpg

女儿房如同一杯水蜜桃奶缇,粉色墙面如同奶油般温柔细腻,碰撞少许白色,为简单的空间基调注入梦幻童真的灵魂。 躁动的情绪在弹奏钢琴那一刻被安抚至平静,悦耳的琴声为空间注入浪漫因子,不管在白天还是夜晚,静静绽放,每一曲都是美好且迷人的。

泰莱白金湾-195平-现代风格-户型图.jpg

案例设计师

林凤设计师

设计师:林凤设计师

从业时间:13年

设计理念:设计是用心雕琢的艺术品

预约设计师

算算你家装修多少钱

报名即享丰厚赠品,享半价装修

免费报价
咨询热线:400-656-9909
20190221103704574636.jpg

精品设计案例

20180612134930523248.jpg 服务号二维码.jpg