立即预约 立即预约
免费定制整装家居

免费定制整装家居

一站置家 全程无忧 一省到底
hide.png

当前位置: 首页 > 装修案例效果图 > 金地樾檀山|现代简约

金地樾檀山|现代简约 86平 现代简约风格效果图

收藏
案例风格 现代简约 案例户型 二居 案例面积 86平米
楼盘名称 金地樾檀山 设计师 王松 案例类型 婚房

设计理念:解决客户空间使用需求的,所以一定要以人为本,从居住者的生活方式、生活习惯出发,为客户提供最适合他的、创造性的解决方案。为此,设计师需要不断地主动去体验各种生活方式,才能更好地理解和满足客户的需求。

客厅
第1张
第2张
第3张
卧室
第1张
卫生间
第1张
厨房
第1张
第2张
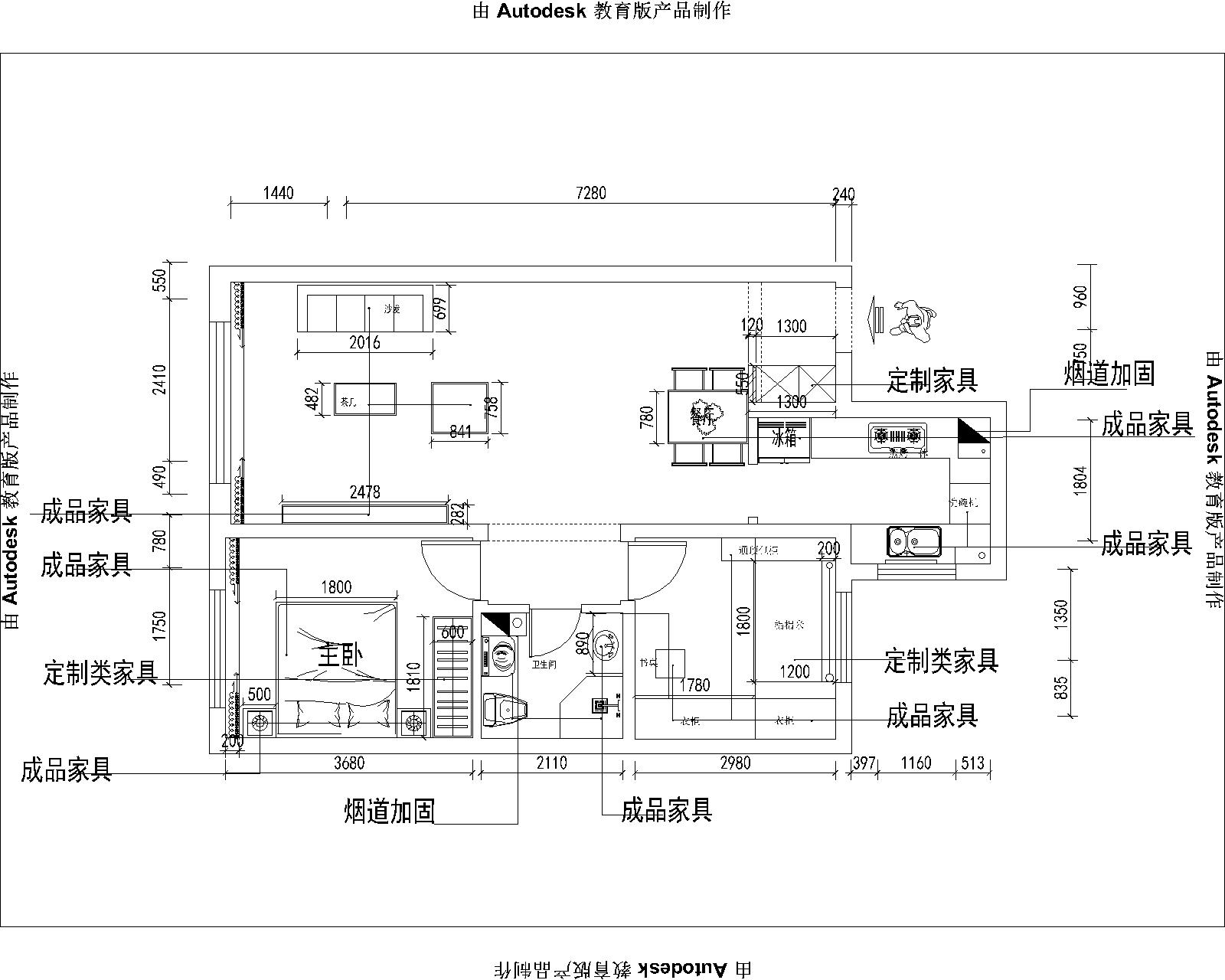
户型图
第1张
金地樾檀山-86平-北欧风格-客餐厅 (2).jpg 金地樾檀山-86平-北欧风格-客餐厅.jpg 金地樾檀山-86平-北欧风格-首图.jpg

在一个家庭中,客厅是连接内外和沟通客主情感的主要场所,利用频率较高,所以在空间上也相对比较大。客厅棚顶采用简单的石膏线,使得空间看起来更有层次感。

金地樾檀山-86平-北欧风格-卧室.jpg

主卧采用吊灯设计,在满足颜值的同时也能满足日常照明需要,卧室是睡眠、休息、存放衣物的主要场所,是居室中最个人化的空间。每一间精心布置的卧室就是一首动人优美的旋律,值得回味。在满足基本功能需求的基础上,通过对空间的合理规划,尽可能保持布局的“空”与极简。

金地樾檀山-86平-北欧风格-卫生间.jpg

卫生间墙砖铺设小花砖迎合北欧风格的元素搭配起来显得干净整洁

金地樾檀山-86平-北欧风格-厨房 (2).jpg 金地樾檀山-86平-北欧风格-厨房.jpg

厨房采用了豆绿色橱柜和仿复古小花砖给人带来了时尚又温馨的感觉反而看起来更加宽敞明亮大气

金地樾檀山H16#3-20-1施工图-Model.jpg

案例设计师

王松

设计师:王松

从业时间:10年

设计理念:品味生活,从家开始

预约设计师

算算你家装修多少钱

报名即享丰厚赠品,享半价装修

免费报价
咨询热线:400-656-9909
20190221103704574636.jpg

精品设计案例

20180612134930523248.jpg 服务号二维码.jpg