立即预约 立即预约
免费定制整装家居

免费定制整装家居

一站置家 全程无忧 一省到底
hide.png

当前位置: 首页 > 装修案例效果图 > 澳海南樾府|现代简约

澳海南樾府|现代简约 120平 现代简约风格效果图

收藏
案例风格 现代简约 案例户型 一居 案例面积 120平米
楼盘名称 澳海南樾府 设计师 李丹 案例类型 婚房

设计理念:本案采用丰富的色彩打造一种温馨的感觉,深灰色和棕色让空间更加温暖,更有结婚之后家的感觉,也让空间没有因为灰色的加入而缺失温馨的感觉。

客厅
第1张
第2张
第3张
第4张
餐厅
第1张
第2张
卧室
第1张
第2张
卫生间
第1张
厨房
第1张
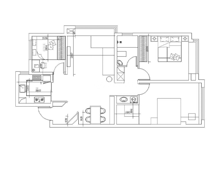
户型图
第1张
奥海南越府-120平-现代简约风格 -客餐厅(3).jpg 奥海南越府-120平-现代简约风格 -客餐厅(4).jpg 奥海南越府-120平-现代简约风格 -客厅(2).jpg 奥海南越府-120平-现代简约风格 -客厅(3).jpg

客厅与餐厅厨房相连接,让原本比较小的空间显得更大视野更开阔,主要以白色、灰色以辅来点缀,既简洁又不失单调,主题颜色为白色,提升了空间的造型感觉,让空间风格更加简洁。

奥海南越府-120平-现代简约风格 -客餐厅(2).jpg 奥海南越府-120平-现代简约风格 -客餐厅(3).jpg

餐厅空间与客厅在一个空间,以简洁和实用为主,灯光以温馨为主。在餐桌的墙面上摆放一些装饰画,增加餐厅的情调。

奥海南越府-120平-现代简约风格-次卧 (2).jpg 奥海南越府-120平-现代简约风格-次卧.jpg

主卧室主要以浅蓝色和白色为主,墙面上摆放了一些装饰画,靠窗加了梳妆台,通顶的白色衣柜,增加了空间的储物功能,床头柜上摆放了一些装饰,使整个空间更加温馨。

奥海南越府-120平-现代简约风格 -卫生间.jpg

卫生间采用灰色的砖,地砖上墙的铺贴方式,让卫生间更大气,灰色柜子搭配白色的台面,整体的色调给人一种高端大气的感觉。

奥海南越府-120平-现代简约风格-厨房.jpg

厨房采用封闭式U型厨房,橱柜采用平板门无拉手,更现代美观,上柜下柜颜色不统一,采用灰白来进行搭配,白色的台面和墙砖更加干净。

奥海南越府-120平-现代简约风格-平面图.jpg

案例设计师

李丹

设计师:李丹

从业时间:5年

设计理念:用我的专业和你的想法,打造专业的家

预约设计师

算算你家装修多少钱

报名即享丰厚赠品,品质装修

免费报价
咨询热线:400-656-9909
20190221103704574636.jpg

精品设计案例

20180612134930523248.jpg 服务号二维码.jpg