立即预约 立即预约
免费定制整装家居

免费定制整装家居

一站置家 全程无忧 一省到底
hide.png

当前位置: 首页 > 装修案例效果图 > 金辉优步湖畔|意式极简风格

金辉优步湖畔|意式极简风格 150平 其他风格效果图

收藏
案例风格 其他 案例户型 四居 案例面积 150平米
楼盘名称 金辉优步湖畔 设计师 林凤设计师 案例类型 改善性住宅

设计理念:打造拒绝庸俗的一种生活态度和舒适的私人居家空间。

客厅
第1张
第2张
卧室
第1张
第2张
卫生间
第1张
厨房
第1张
书房
第1张
门厅
第1张
第2张
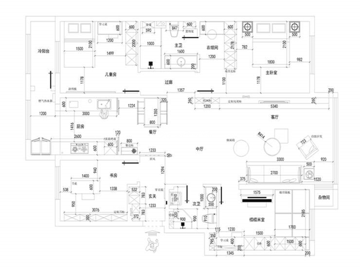
户型图
第1张
金辉优步湖畔150平-意式极简风格-客厅.jpg 金辉优步湖畔150平-意式极简风格-首图.jpg

电视背景两侧采用了高光材质定制柜体,背景墙底部岩板满铺看上去更简洁大气,整体,满足了审美需求的同时也起到了材质与色彩的视觉反差碰撞。

金辉优步湖畔150平-意式极简风格-次卧.jpg 金辉优步湖畔150平-意式极简风格-主卧.jpg

原木色地板搭配暖灰色衣柜整个卧室给人感觉干净清新,米灰色床头背景墙与深灰色床品相互呼应完美结合,烟灰色窗帘恰到好处的稳住整个空间的明暗度。

金辉优步湖畔150平-意式极简风格-主卫.jpg

灰色瓷砖墙面与深灰色洗漱柜结合在颜色上给人一种宁静高级的感觉,整个空间简洁大气现代与美式的感觉完美融合。

金辉优步湖畔150平-意式极简风格-厨房.jpg

橱柜选用了灰色油漆面门板搭配白色石英石台面,色彩统一整洁大气,嵌入式电器与橱柜完美衔接。

金辉优步湖畔150平-意式极简风格-书房.jpg 金辉优步湖畔150平-意式极简风格-玄关2.jpg 金辉优步湖畔150平-意式极简风格-玄关1.jpg

白色高光板鞋柜显得整洁有艺术感,金色玻璃框内超白长虹玻璃透光不透影,迎客松盆景点缀了色彩的同时也带来了一丝意境。

金辉优步湖畔150平-意式极简风格-户型图.jpg

案例设计师

林凤设计师

设计师:林凤设计师

从业时间:7年

设计理念:

预约设计师

算算你家装修多少钱

报名即享丰厚赠品,品质装修

免费报价
咨询热线:400-656-9909
20190221103704574636.jpg

精品设计案例

20180612134930523248.jpg 服务号二维码.jpg