立即预约 立即预约
免费定制整装家居

免费定制整装家居

一站置家 全程无忧 一省到底
hide.png

当前位置: 首页 > 装修案例效果图 > 中南玖熙墅|现代极简

中南玖熙墅|现代极简 170平 现代简约风格效果图

收藏
案例风格 现代简约 案例户型 四居 案例面积 170平米
楼盘名称 中南玖熙墅 设计师 吴勇 案例类型 改善性住宅

设计理念:经过前期和客户的沟通了解的客户的需求,对整体的把握更加有信心,环保现行,效果紧随其后。在合理的利用空的同时规划出合理的休息,待客,烹饪,洗漱区域

客厅
第1张
第2张
餐厅
第1张
卧室
第1张
第2张
第3张
卫生间
第1张
厨房
第1张
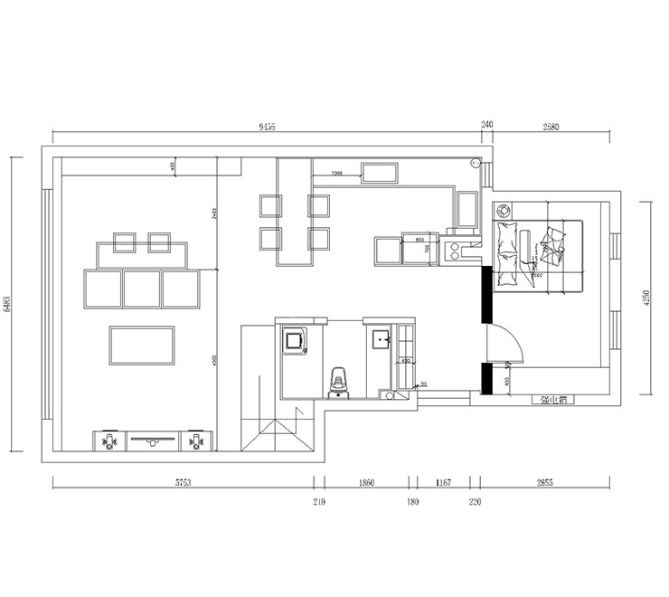
户型图
第1张
第2张
吴勇设计丨中南玖熙墅-改-客餐厅.jpg 吴勇设计丨中南玖熙墅-改-首图.jpg

本案户型客厅靠近窗户,视野宽阔,电视背景墙采用理石悬空铺贴,左侧做木格栅,颜色搭配合理而不夸张,给人一种舒适感墙面涂白色乳胶漆,简约又大气。

吴勇设计丨中南玖熙墅-改-客餐厅1.jpg

本方案餐厅位于整体空间和沙发一侧,标准的四人位,客厅地砖通铺,色彩简约,略深的颜色不会反光给人眩晕感。靠近厨房大大节约了做饭上菜的流程,更加方便。

吴勇设计丨中南玖熙墅-改-卧室 1.jpg 吴勇设计丨中南玖熙墅-改-卧室 3.jpg 吴勇设计丨中南玖熙墅-改-卧室.jpg

卧室墙面采用硬包形式,白色板材与墙面白色乳胶漆完美衔接,窗帘盒与吊棚石膏线连在一起,不会显得啰嗦,窗户高而宽阔,给人放松感与舒适感

吴勇设计丨中南玖熙墅-改-卫生间.jpg

本方案的卫生间沿用了地砖上墙,整体的灰色统一却不显得单调。洗手盆的挑空设计显得大气且易于打理,不会有卫生死角,整体布局合理,满足住户需求。

吴勇设计丨中南玖熙墅-改-厨房.jpg

厨房整体布局合理,上下双橱柜满足储物需求,冰箱,烤箱等电器合理摆放不显得拥挤,台面布置满足“洗切炒”的做饭流程,不会手忙脚乱,棚顶采用基层吊顶,内置吸顶灯。

一楼平面图.jpg 二楼平面图.jpg

案例设计师

吴勇

设计师:吴勇

从业时间:11年

设计理念:用抽象的思维去设计形象的事物

预约设计师

算算你家装修多少钱

报名即享丰厚赠品,享半价装修

免费报价
咨询热线:400-656-9909
20190221103704574636.jpg

精品设计案例

20180612134930523248.jpg 服务号二维码.jpg