立即预约 立即预约
免费定制整装家居

免费定制整装家居

一站置家 全程无忧 一省到底
hide.png

当前位置: 首页 > 装修案例效果图 > 远洋仰山|现代轻奢

远洋仰山|现代轻奢 125平 轻奢风格效果图

收藏
案例风格 轻奢 案例户型 三居 案例面积 125平米
楼盘名称 远洋仰山 设计师 吴勇 案例类型 改善性住宅

设计理念:经过前期和客户的沟通,整体格局开阔,色彩搭配,空间布局合理,环境温馨,采用现在流行的无主灯设计,保证光源充足的同时显得高尚

客厅
第1张
第2张
餐厅
第1张
第2张
第3张
卧室
第1张
卫生间
第1张
厨房
第1张
儿童房
第1张
第2张
门厅
第1张
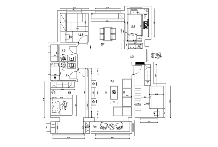
户型图
第1张
远洋仰山-125-现代轻奢-客厅.jpg 远洋仰山-125-现代轻奢-首图.jpg

本案户型客厅主要是空间宽敞,电视背景墙采用理石悬空,上面的灯带虚光增加高级感,背景墙两侧做造型,新颖时尚。客厅整体颜色柔和温馨,给人舒适感

远洋仰山-125-现代轻奢-餐厅.jpg 远洋仰山-125-现代轻奢-餐厅1.jpg 远洋仰山-125-现代轻奢-餐厅2.jpg

本方案餐厅临近厨房,增加用餐便捷,靠近窗户视野开阔明亮,窗户采用百叶窗,保证自然光源同时保障私密性,上方采用筒灯和轨道灯,光源充足,留有中央空调口,用餐环境更加舒适

远洋仰山-125-现代轻奢-主卧室.jpg

色彩的运用在装修手法上显得尤为重要,卧室背景墙采用蓝色和木材原色作为搭配,适当的挂件和艺术造型吊灯使得环境更加温馨却不显得死板,大衣柜保证储藏空间。

远洋仰山-125-现代轻奢-卫生间.jpg

卫生间洗手台采用悬空设计,不留卫生死角,洗手台下留有发光灯带更加人性化。洗手台上方浴室镜间置开放格,常用洗漱用品触手可得,淋浴房做玻璃隔断,平时使用不会相互打扰。

远洋仰山-125-现代轻奢-厨房.jpg

厨房采用大块墙砖,显得大气,整体布局满足中国人“洗切炒”的做饭流程,橱柜采用石英石台面,坚固易清理,上下设有橱柜,保证了储藏空间,灯光充足,配置合理。

远洋仰山-125-现代轻奢-儿童房.jpg 远洋仰山-125-现代轻奢-儿童房1.jpg 远洋仰山-125-现代轻奢-门厅.jpg 远洋仰山-125-现代轻奢-平面图.jpg

案例设计师

吴勇

设计师:吴勇

从业时间:11年

设计理念:用抽象的思维去设计形象的事物

预约设计师

算算你家装修多少钱

报名即享丰厚赠品,享半价装修

免费报价
咨询热线:400-656-9909
20190221103704574636.jpg

精品设计案例

20180612134930523248.jpg 服务号二维码.jpg