立即预约 立即预约
免费定制整装家居

免费定制整装家居

一站置家 全程无忧 一省到底
hide.png

当前位置: 首页 > 装修案例效果图 > 首创禧瑞长河|现代简约

首创禧瑞长河|现代简约 248平 现代简约风格效果图

收藏
案例风格 现代简约 案例户型 三居 案例面积 248平米
楼盘名称 首创禧瑞长河 设计师 郑婷婷 案例类型 婚房

设计理念:这是为一堆新婚夫妇设计的婚房,2层的别墅空间,打造出原生态质朴的美感。用雾面代替所有光面,用质朴取代奢华,所呈现的,就是侘寂质感。

首创禧瑞长河-248平-现代风格-客厅.jpg 首创禧瑞长河-248平-现代风格-客厅-2.jpg 首创禧瑞长河-248平-现代风格-首图.jpg

客厅和楼梯间,用玻璃幕墙和木作搭配作为隔断,使走廊空间更加通透, 柔和木色与浅灰色系的结合,粗粝中藏着细腻的自然肌理撩人于无形,绿植、灯光的点缀归还空间自然质感。

首创禧瑞长河-248平-现代风格-餐厅.jpg 首创禧瑞长河-248平-现代风格-餐厅-2.jpg 首创禧瑞长河-248平-现代风格-餐厅-3.jpg

在阳光的沐浴的生活场景,在厨房和北卧室之间打造了室外的一小片天地,高高的大树,落地的玻璃,阳光洒进来,形成光影,给餐厅增加了氛围。将空间回归于自然,看见生命的变化 ,四季的改变。

首创禧瑞长河-248平-现代风格-书房.jpg 首创禧瑞长河-248平-现代风格-书房-2.jpg

书房是宜居的休憩空间,相比过于繁复的装饰、丰富的色彩简单的线条加上灰、白的配色,更容易使视觉放松人的心情也极易变得舒缓

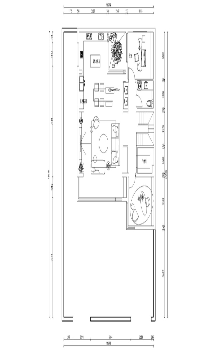
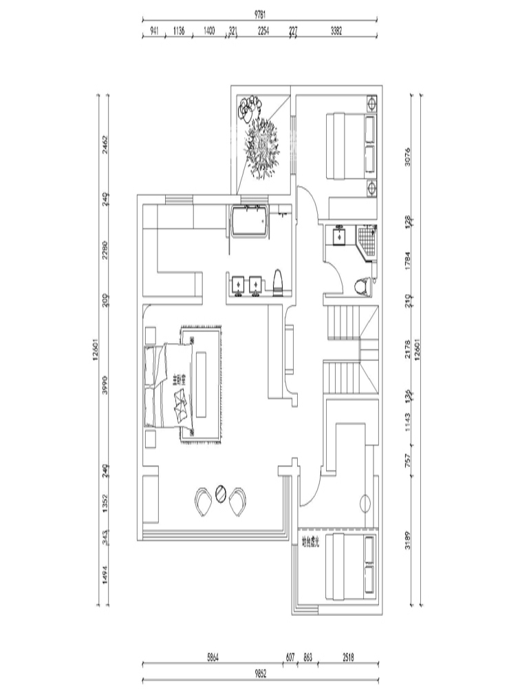
首创禧瑞长河-248平-现代风格-楼梯.jpg 首创禧瑞长河-248平-现代风格-户型图一楼.jpg 首创禧瑞长河-248平-现代风格-户型图二楼.jpg

案例设计师

郑婷婷

设计师:郑婷婷

从业时间:9年

设计理念:用心与住宅对话,交织出住宅中的灵魂所属

预约设计师

算算你家装修多少钱

报名即享丰厚赠品,享半价装修

免费报价
咨询热线:400-656-9909
20190221103704574636.jpg

精品设计案例

20180612134930523248.jpg 服务号二维码.jpg