立即预约 立即预约
免费定制整装家居

免费定制整装家居

一站置家 全程无忧 一省到底
hide.png

当前位置: 首页 > 装修案例效果图 > 金地樾檀山|现代简约

金地樾檀山|现代简约 138平 现代简约风格效果图

收藏
案例风格 现代简约 案例户型 三居 案例面积 138平米
楼盘名称 金地樾檀山 设计师 郑婷婷 案例类型 改善性住宅

设计理念:业主是做服装生意的,最求一些简约、时尚的元素。整体格局南北通透,保留三个居住的房间。客餐厅贯穿一起,使得整体空间开阔。中性色色系,深浅搭配,让空间更加的有层次感。无主灯设计设计,打造“有序”却“流动”的空间

客厅
第1张
第2张
餐厅
第1张
第2张
第3张
卧室
第1张
卫生间
第1张
厨房
第1张
第2张
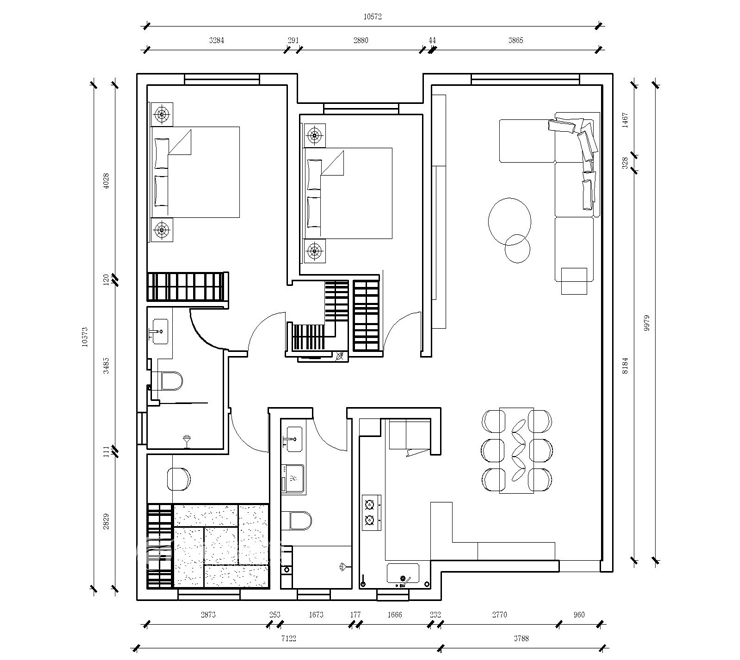
户型图
第1张
金地樾檀山-138平-现代风格-客厅.jpg 金地樾檀山-138平-现代风格-客厅-2.jpg

把客厅和阳台打通,增加客厅的空间,没有阳台又缺少了晾晒功能。所以加宽了窗帘盒,做了隐形晾衣区。电视背景墙运用理石、墙板,订制柜。高低层次增加立体感。玻璃门的柜子里放一些男主人喜欢的手办,展示出来。客厅无主灯设计,控制灯具的明暗,改变室内的氛围。

金地樾檀山-138平-现代风格-餐厅.jpg 金地樾檀山-138平-现代风格-餐厅-2.jpg 金地樾檀山-138平-现代风格-餐厅-3.jpg

餐厅位于厨房与门厅之间,通过线型灯把两个空间结合在一起,从棚面延伸到墙面,隐藏的灯光层次丰富,让你清晰感受到边界感、肌理感、仪式感。

金地樾檀山-138平-现代风格-卧室.jpg

主卧为暗色系,独立衣帽间,卫生间,使用便利。床头鱼线灯垂下来,增加层次。

金地樾檀山-138平-现代风格-卫生间.jpg

主卫瓷砖为通体版,提升空间视觉效果。

金地樾檀山-138平-现代风格-厨房.jpg 金地樾檀山-138平-现代风格-厨房-2.jpg

开放式的厨房,广纳了家的每一缕温馨细节,把生活的爱意与温暖融入进每一道菜中。橱柜与岛台的结合,让家人有了更为自然的互动关系,功能上的优化亦带来了滔滔的情感。

金地樾檀山-138平-现代风格-户型图.jpg

案例设计师

郑婷婷

设计师:郑婷婷

从业时间:9年

设计理念:用心与住宅对话,交织出住宅中的灵魂所属

预约设计师

算算你家装修多少钱

报名即享丰厚赠品,享半价装修

免费报价
咨询热线:400-656-9909
20190221103704574636.jpg

精品设计案例

20180612134930523248.jpg 服务号二维码.jpg