立即预约 立即预约
免费定制整装家居

免费定制整装家居

一站置家 全程无忧 一省到底
hide.png

当前位置: 首页 > 装修案例效果图 > 保利紫荆公馆|现代轻奢

保利紫荆公馆|现代轻奢 130平 轻奢风格效果图

收藏
案例风格 轻奢 案例户型 三居 案例面积 130平米
楼盘名称 保利紫荆公馆 设计师 林凤设计师 案例类型 改善性住宅

设计理念:本次设计客户为一个年轻人,作为婚房,现代风格在处理空间方面强调室内空间宽敞、室内通透,最大限度引入自然光。该案例以灰白为基调,为业主创造出舒适、自然的居住氛围。

客厅
第1张
第2张
第3张
餐厅
第1张
卧室
第1张
第2张
第3张
卫生间
第1张
厨房
第1张
书房
第1张
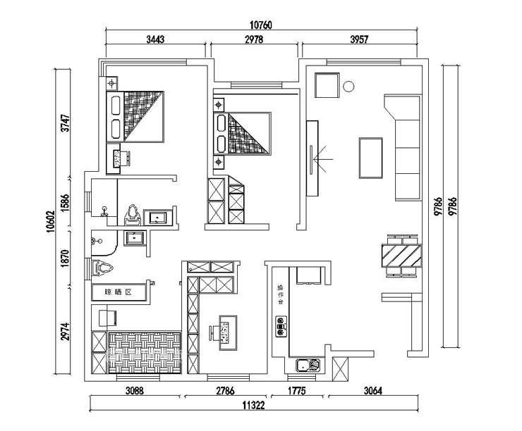
户型图
第1张
保利紫荆公馆-130平 现代轻奢 客厅 (1).jpg 保利紫荆公馆-130平 现代轻奢 客厅 (2).jpg 保利紫荆公馆-130平 现代轻奢 客餐厅 (2).jpg

客厅主题色调偏暖,多运用理石,来增添客厅的整体质感,金属元素的运用,使本就没有过多造型的客厅,不会显得单调,色彩也更加突出。简单的配饰不会显得繁琐,也是凸显现代风格的重要因素。

保利紫荆公馆-130平 现代轻奢 客餐厅.jpg

大理石的餐桌,以及餐桌下半部分的金属元素,使其更富有设计感,上方的餐吊更是在一定基础上给餐厅的整体风格加了分,在简单的基础上,通过软装的加持,渲染效果,让餐厅空间在视觉效果上,更加简约大气。

保利紫荆公馆-130平 现代轻奢 次卧(2).jpg 保利紫荆公馆-130平 现代轻奢 次卧.jpg 保利紫荆公馆-130平 现代轻奢 主卧..jpg

主卧设有衣帽间,增加了储物空间,又使整体空间更加简洁,法式家具的高床头增添氛围感,可以凸显法式风格的浪漫。客卧放置两张床,可以扩大居住空间,床头的硬包设计,彰显法式风格的大气,飘窗的设计,给简简单单的客卧增加了休闲区的功能。楼上儿童房的设计,都更能贴近孩子的喜好,在床边设计书桌,又能方便日常孩子学习。

保利紫荆公馆-130平 现代轻奢 卫生间.jpg

客卫的双手盆设计,在做到美观的同时,又方便了日常两代人的洗漱需求,旁边位置设置壁龛,方便平时放置一些洗漱用品,浴屏是直屏的设计,扩大淋浴空间,既做到了干湿分离,又使空间更加整洁明亮。楼上卫生间做了定制形式的手盆,洗衣机内嵌的方式,节约空间。

保利紫荆公馆-130平 现代轻奢 厨房.jpg

厨房为封闭式厨房,以灰色和白色为主,拉门采用联动式,增加客厅的采光。深浅搭配的柜体颜色,告别了单一颜色的沉闷和死板,更符合现代风格的简约和时尚。

保利紫荆公馆-130平 现代轻奢 书房.jpg 保利紫荆公馆公馆-130平 现代轻奢 户型图.jpg

案例设计师

林凤设计师

设计师:林凤设计师

从业时间:0年

设计理念:

预约设计师

算算你家装修多少钱

报名即享丰厚赠品,享半价装修

免费报价
咨询热线:400-656-9909
20190221103704574636.jpg

精品设计案例

20180612134930523248.jpg 服务号二维码.jpg