立即预约 立即预约
免费定制整装家居

免费定制整装家居

一站置家 全程无忧 一省到底
hide.png

当前位置: 首页 > 装修案例效果图 > 中海和平之门|现代简约

中海和平之门|现代简约 109平 现代简约风格效果图

收藏
案例风格 现代简约 案例户型 二居 案例面积 109平米
楼盘名称 中海和平之门 设计师 林凤设计师 案例类型 改善性住宅

设计理念:业主是一对年轻的夫妻,喜欢简单室内空间,色彩也不要太艳丽,尽量好打理些,注重实用性和储藏空间。

客厅
第1张
第2张
第3张
第4张
第5张
餐厅
第1张
阳台
第1张
儿童房
第1张
门厅
第1张
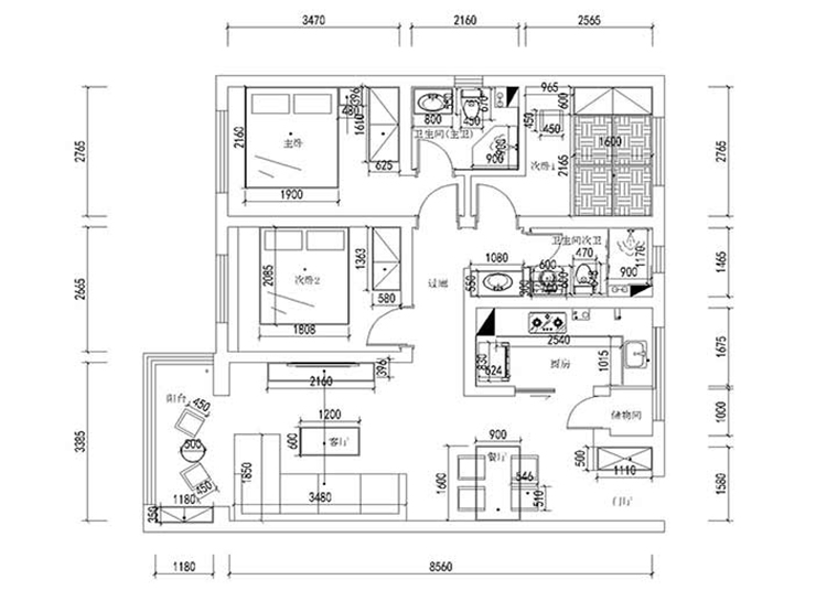
户型图
第1张
中海和平之门-109平-简约现代-客厅-客厅1.jpg 中海和平之门-109平-简约现代-客厅-客厅2.jpg 中海和平之门-109平-简约现代-客厅-客厅3.jpg 中海和平之门-109平-简约现代-客厅-客厅4.jpg 中海和平之门-109平-简约现代-客厅-电视背景墙.jpg

客厅我们采用灰色系的瓷砖地面,电视背景利用组合柜的形式来增加储藏和收纳空间,沙发背景利用简单淡灰色与地面想呼应,棚顶直接用直线棚进行归方,这样墙面与天棚交相辉映,从简至繁。

中海和平之门-109平-简约现代-客厅-餐厅.jpg

餐厅空间不是很大,不能放在厨房门口位置,这里一定要注意餐桌尺寸,利用好空间位置合理应用布局。

中海和平之门-109平-简约现代-客厅-阳台.jpg 中海和平之门-109平-简约现代-客厅-儿童房.jpg

儿童房整体我们选用淡粉色来点缀空间,所以这里窗帘窗,衣柜我们都用淡粉色,只有在床头背景墙的位置我们选用了,暖白色的图案来呼应整体空间,看上去即活泼又温馨。

中海和平之门-109平-简约现代-客厅-玄关.jpg

门厅位置设立玄关鞋柜,这里我们将原有墙体拆除后向外侧移动一部分,可以加大衣帽柜的尺寸,既能储物而且还能坐着换鞋,实用用方便。

中海和平之门-109平-简约现代-平面图.jpg

案例设计师

林凤设计师

设计师:林凤设计师

从业时间:6年

设计理念:专注于一件事,并把他做到极致,

预约设计师

算算你家装修多少钱

报名即享丰厚赠品,享半价装修

免费报价
咨询热线:400-656-9909
20190221103704574636.jpg

精品设计案例

20180612134930523248.jpg 服务号二维码.jpg