立即预约 立即预约
免费定制整装家居

免费定制整装家居

一站置家 全程无忧 一省到底
hide.png

当前位置: 首页 > 装修案例效果图 > 美的盛堂|现代简约

美的盛堂|现代简约 167平 现代简约风格效果图

收藏
案例风格 现代简约 案例户型 三居 案例面积 167平米
楼盘名称 美的盛堂 设计师 菅垚 案例类型 改善性住宅

设计理念:本案为现代轻奢风格设计,家庭成员是三口人,分为三层,享受都市现代的品质生活

客厅
第1张
第2张
餐厅
第1张
卧室
第1张
卫生间
第1张
第2张
第3张
厨房
第1张
儿童房
第1张
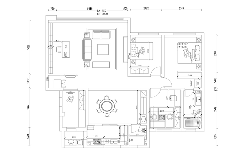
户型图
第1张
美的盛唐140-极简风格-客厅 (1).jpg 美的盛唐140-极简风格-客厅 (2).jpg

客厅中的整体感觉以大气为主调,客厅作为家里的中心位置,在元素质感还有色调上都比较明亮,开放式厨房与客厅相连,中间用多功能理石吧台做衔接,方便的同时的进线全屋的大气与时尚感。

美的盛唐140-极简风格-餐厅 (2).jpg 美的盛唐140-极简风格-主卧.jpg

占据二楼空间的主体面积,一体化多功能主卧除了休息还有兼具休闲,宽敞的卧室兼具休闲沙发与电视和独立私人的衣帽间。三楼整体步入衣帽间,足够宽敞的储物功能方便居住的同时,更显温馨感。

美的盛唐140-极简风格-卫生间 (1).jpg 美的盛唐140-极简风格-卫生间 (3).jpg 美的盛唐140-极简风格-卫生间 (2).jpg

客卫用墙面白色花纹瓷砖提升了质感,还设计了干湿分离,让空间发挥出最大的作用,主卫为业主设计了浴缸,能提高整体的舒适性。

美的盛唐140-极简风格-西厨.jpg 美的盛唐140-极简风格-女儿房.jpg 美的盛唐140洋房-Model.jpg

案例设计师

菅垚

设计师:菅垚

从业时间:11年

设计理念:没有最好的方案,只有最适合的方案

预约设计师

算算你家装修多少钱

报名即享丰厚赠品,品质装修

免费报价
咨询热线:400-656-9909
20190221103704574636.jpg

精品设计案例

20180612134930523248.jpg 服务号二维码.jpg