立即预约 立即预约
免费定制整装家居

免费定制整装家居

一站置家 全程无忧 一省到底
hide.png

当前位置: 首页 > 装修案例效果图 > 悦景新世界|美式

悦景新世界|美式 115平 美式风格效果图

收藏
案例风格 美式 案例户型 三居 案例面积 115平米
楼盘名称 悦景新世界 设计师 林凤设计师 案例类型 婚房

设计理念:本案以轻美式风格为主,除去经典美式的厚重,倒入现代年轻气息的风格为主。年轻人的结婚刚需房。两个人喜欢不寻常与大众的元素感觉,又想保留美式的经典风格,从而打造出美式和混搭感觉的整体装修风格。

客厅
第1张
第2张
卧室
第1张
第2张
第3张
卫生间
第1张
厨房
第1张
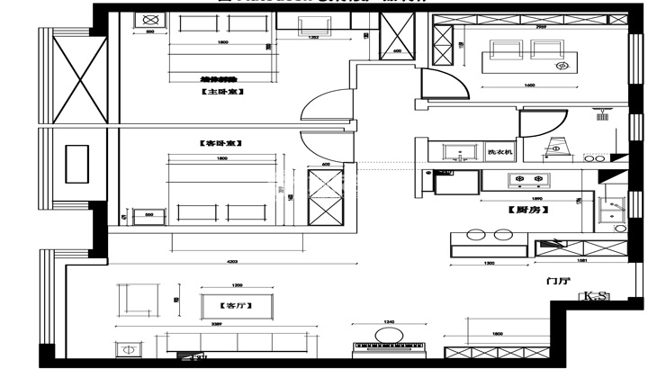
户型图
第1张
悦景新世界-115平-美式-餐厅.jpg 悦景新世界-115平-美式-客厅1.jpg

客厅整体墙面以豆绿色为主,大面积的视觉冲击感带来不同于寻常的视觉冲击。胡桃色的家具纹理样式配合绿色深色墙面,打造业主想要的特有的装修意味。

悦景新世界-115平-美式-卧室.jpg 悦景新世界-115平-美式-客卧.jpg 悦景新世界-115平-美式-主卧.jpg

主卧以灰色为主胡调色的家具和定制柜,深色的艺术拼花地板,卧室的整体复古感觉浓。

悦景新世界-115平-美式-卫生间.jpg

干湿分离,实用性强,复古的仿古砖加上坐便后的艺术拼花瓷砖,卫生间更具有复古浓郁的艺术气息。

悦景新世界-115平-美式-厨房.jpg

敞开式厨房配合吧台,整体空间感更加通透

悦景新世界-115平-美式-平面图.jpg

案例设计师

林凤设计师

设计师:林凤设计师

从业时间:8年

设计理念:设计源于生活,细节成就品质。

预约设计师

算算你家装修多少钱

报名即享丰厚赠品,品质装修

免费报价
咨询热线:400-656-9909
20190221103704574636.jpg

精品设计案例

20180612134930523248.jpg 服务号二维码.jpg