立即预约 立即预约
免费定制整装家居

免费定制整装家居

一站置家 全程无忧 一省到底
hide.png

当前位置: 首页 > 装修案例效果图 > 锦园

锦园 104平 现代简约风格效果图

收藏
案例风格 现代简约 案例户型 三居 案例面积 104平米
楼盘名称 锦园 设计师 林凤设计师 案例类型 改善性住宅

设计理念:本案的主题设计风格是现代简约,其次混搭进了些许的田园元素,营造出了浓浓的小资和艺术氛围。

客厅
第1张
第2张
第3张
第4张
餐厅
第1张
卧室
第1张
卫生间
第1张
厨房
第1张
门厅
第1张
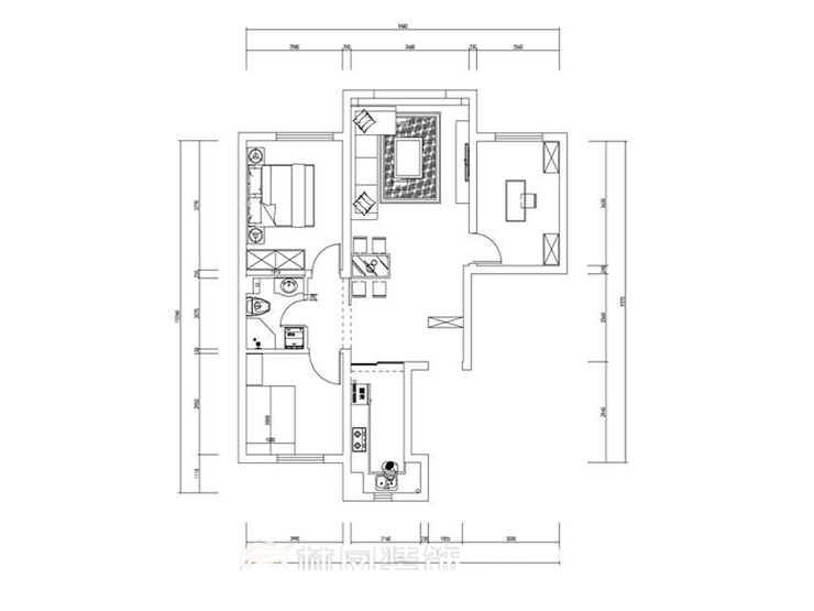
户型图
第1张
  • 案例详情

王硕-锦园104平现代-客厅6.jpg 王硕-锦园104平现代-客厅3.jpg 王硕-锦园104平现代-客厅4.jpg 王硕-锦园104平现代-客厅.jpg

客厅空间是我们休闲交流最多的地方,也是客人看到的第一空间,整体会客空间烘托出一种浓浓的异域风情 而同时又不失小清新。

王硕-锦园104平现代-餐厅.jpg

餐厅以隔断墙面装饰,这样就实现了美观性和功能性同时兼备,又显得整体氛围温馨浪漫。

王硕-锦园104平现代-主卧.jpg

主卧属于是休息放松的私人空间,人们大部分是间是在床上度过,良好的睡眠环境是人们放松的基本需求,所以在色彩上主要以舒适安逸为主给予业主轻松愉快的放松环境。

王硕-锦园104平现代-卫生间.jpg

卫生间是人放松清洁的空间,都使撞色加上白色光洁的洁具,使原本的空间得到延展,让主人充分享受着休闲时光。

wkml_View13.jpg

厨房使用了L字型的设计,空间利用率得到提升,增加了储物空间,采用复古简洁的风格,给予客厅装修空间的呼应,更显现代简约自然地感觉。

王硕-锦园104平现代-门厅.jpg 王硕-锦园104平现代-户型图.jpg

案例设计师

林凤设计师

设计师:林凤设计师

从业时间:7年

设计理念:专注做最自然的设计。

预约设计师

算算你家装修多少钱

报名即享丰厚赠品,品质装修

免费报价
咨询热线:400-656-9909
20190221103704574636.jpg

精品设计案例

20180612134930523248.jpg 服务号二维码.jpg