立即预约 立即预约
免费定制整装家居

免费定制整装家居

一站置家 全程无忧 一省到底
hide.png

当前位置: 首页 > 装修案例效果图 > 万达公园one|现代简约

万达公园one|现代简约 140平 现代简约风格效果图

收藏
案例风格 现代简约 案例户型 三居 案例面积 140平米
楼盘名称 万达公园one 设计师 孟凡玉 案例类型 改善性住宅

设计理念:整体色调以黑白灰为主,不过多采用装饰呈现出利落的线条,空间比较明朗开阔非常通透。业主是一对新婚夫妇,想要现代简约风格,想要空间明朗开阔,温馨舒适。

客厅
第1张
第2张
餐厅
第1张
卧室
第1张
第2张
第3张
第4张
卫生间
第1张
第2张
厨房
第1张
儿童房
第1张
休闲区
第1张
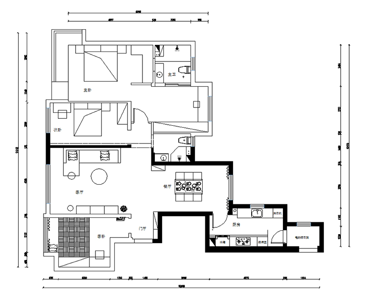
户型图
第1张
万达公园one-143-现代简约-客餐厅 (3).jpg 万达公园one-143-现代简约-首图.jpg

客厅主要以黑白灰为主,白色的电视背景墙,灰色的沙发,地面铺贴的是灰色的瓷砖,无主灯的设计,主次分明,是整个设计更有层次感,加上吊顶的处理,整个客厅干净整洁

万达公园one-143-现代简约-客餐厅 (2).jpg

餐厅的背景墙装饰画将整个空间点亮,融入温馨的暖色调元素,装饰画活跃明朗,生动,营造餐厅的温馨气氛。

万达公园one-143-现代简约-主卧 (3).jpg 万达公园one-143-现代简约-主卧 (2).jpg 万达公园one-143-现代简约-主卧.jpg 万达公园one-143-现代简约-老人房.jpg

主卧室主要以黑白灰为主,墙面上摆放了一些装饰画,通顶的白色衣柜,增加了空间的储物功能,床头柜上悬挂吊灯,使整个空间更加温馨。

万达公园one-143-现代简约-次卫.jpg 万达公园one-143-现代简约-主卫.jpg

卫生间采用灰色的砖,地砖上墙的铺贴方式,地面与墙面颜色一致,让卫生间更大气,黑色柜子搭配白色的台面,整体的色调给人一种高端大气的感觉。卫生间采用灰色的砖,地砖上墙的铺贴方式,地面与墙面颜色一致,让卫生间更大气,黑色柜子搭配白色的台面,整体的色调给人一种高端大气的感觉。卫生间采用灰色的砖,地砖上墙的铺贴方式,地面与墙面颜色一致,让卫生间更大气,黑色柜子搭配白色的台面,整体的色调给人一种高端大气的感觉。卫生间采用灰色的砖,地砖上墙的铺贴方式,地面与墙面颜色一致,让卫生间更大气,黑色柜子搭配白色的台面,整体的色调给人一种高端大气的感觉。卫生间采用灰色的砖,地砖上墙的铺贴方式,地面与墙面颜色一致,让卫生间更大气,黑色柜子搭配白色的台面,整体的色调给人一种高端大气的感觉。卫生间采用灰色的砖,地砖上墙的铺贴方式,地面与墙面颜色一致,让卫生间更大气,黑色柜子搭配白色的台面,整体的色调给人一种高端大气的感觉。

万达公园one-143-现代简约-厨房.jpg

厨房采用封闭式厨房,橱柜采用无把手柜门,上柜下柜颜色统一,地砖颜色与橱柜颜色相呼应,使整个空间简单、干净

万达公园one-143-现代简约-儿童房.jpg

主要以浅蓝色为主,白色调为辅,蓝色可以让孩子在小小的空间里感受到自由,开阔,颜色更加协调。不规则的书柜使空间充满童趣,造型床活跃室内气氛。

万达公园one-143-现代简约-晾衣间.jpg 万达公园one-143-现代简约-户型图.jpg

案例设计师

孟凡玉

设计师:孟凡玉

从业时间:10年

设计理念:好的设计不只是美,它会让人产生美的 感受,它与生活息息相关

预约设计师

算算你家装修多少钱

报名即享丰厚赠品,享半价装修

免费报价
咨询热线:400-656-9909
20190221103704574636.jpg

精品设计案例

20180612134930523248.jpg 服务号二维码.jpg