立即预约 立即预约
免费定制整装家居

免费定制整装家居

一站置家 全程无忧 一省到底
hide.png

当前位置: 首页 > 装修案例效果图 > 万锦·紫园|新中式

万锦·紫园|新中式 97平 新中式风格效果图

收藏
案例风格 新中式 案例户型 三居 案例面积 97平米
楼盘名称 万锦·紫园 设计师 林凤设计师 案例类型 改善性住宅

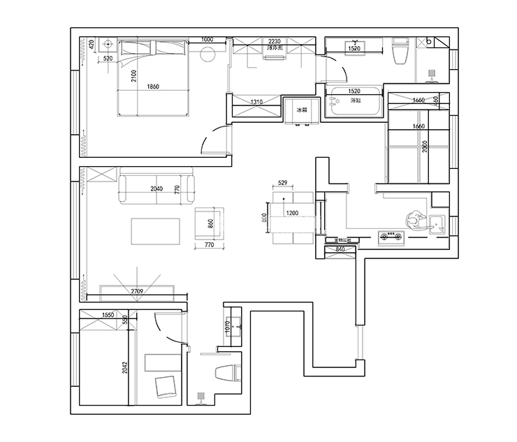
设计理念:本案是为一个幸福美满的三口之家设计改善性住房。女业主打扮非常前卫时尚,却是一个国学爱好者,喜欢中国传统文化,所以对于风格的选择她十分坚定的选择了不太大众的新中式。对于九十多平的房子来说,要满足三室两卫实在是考验能力,而且房主姐姐还想要一个浴缸,值得高兴的是,最终的设计方案满足了业主的所有需求。

客厅
第1张
第2张
第3张
餐厅
第1张
卧室
第1张
卫生间
第1张
厨房
第1张
衣帽间
第1张
户型图
第1张
万锦紫园-97平-新中式风格-客卫.jpg 万锦紫园-97平-新中式风格-客厅.jpg 万锦紫园-97平-新中式风格-首图.jpg

这户的客厅空间比较紧凑,恰恰给空间的多样性增加了可能。电视墙的旁边是进入南次卧的过道,同时也是次卫干区的入口,所以在干区增加了木质格栅,突出中式元素,呼应中式茶几与电视柜。

万锦紫园-97平-新中式风格-餐厅.jpg

餐桌位于厨房侧墙,餐厅与客厅在同一空间,视觉上最大限度的增加了客餐厅的开敞与通透感。餐厅墙开了个圆形的窗,增加了南北通风,同时又是一处中式元素的点缀。绿色的墙面造型为客厅的点缀色,同时能平衡圆窗偏中的问题。

万锦紫园-97平-新中式风格-卧室.jpg

主卧空间并不大,好在有独立的衣帽间,衣帽间设置为木质框架的拉门,背景墙用中式风格的壁纸增加整个卧室的氛围感。

万锦紫园-97平-新中式风格-卫生间.jpg

主卫浴缸的增加是这个案例的一大两点,主卫“入侵”了不常使用的北卧室,冰箱“入侵”了衣帽间的一角。最大可能的利用空间,然而空间整体线条又是那么的流畅与规整。

万锦紫园-97平-新中式风格-卫生间.jpg

更改了厨房的入口方向,我们不仅得到了门厅鞋柜和餐厅,还得到了一个U型的橱柜,一整面墙的吊柜,收纳功能简直不要太强!南北双窗的多通透空间,不仅从形式上突出新中式的感觉,更在意上打造虚实掩映、一步一景的中式理念。

万锦紫园-97平-新中式风格-衣帽间.jpg 万锦紫园-97平-新中式风格-平面图.jpg

案例设计师

林凤设计师

设计师:林凤设计师

从业时间:8年

设计理念:一切随心,用心去感悟空间

预约设计师

算算你家装修多少钱

报名即享丰厚赠品,享半价装修

免费报价
咨询热线:400-656-9909
20190221103704574636.jpg

精品设计案例

20180612134930523248.jpg 服务号二维码.jpg