立即预约 立即预约
免费定制整装家居

免费定制整装家居

一站置家 全程无忧 一省到底
hide.png

当前位置: 首页 > 装修案例效果图 > 美弗霞湾|新中式风格

美弗霞湾|新中式风格 108平 新中式风格效果图

收藏
案例风格 新中式 案例户型 二居 案例面积 108平米
楼盘名称 美弗霞湾 设计师 林凤设计师 案例类型 改善性住宅

设计理念:和谐的家居空间是生活的意义之一。本案是两口之家,业主要求空间利用率要高,要家居能充满情趣感。

客厅
第1张
第2张
第3张
第4张
餐厅
第1张
卧室
第1张
第2张
卫生间
第1张
厨房
第1张
门厅
第1张
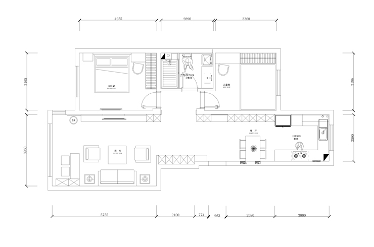
户型图
第1张
美弗霞湾-108平-新中式风格-客厅1.jpg 美弗霞湾-108平-新中式风格-客厅2.jpg 美弗霞湾-108平-新中式风格-客厅3.jpg 美弗霞湾-108平-新中式风格-首图.jpg

电视墙采用中式元素比较浓重的大板砖结合深色实木格栅板,右侧开放的展示柜配以柔和的灯光,凸显层次。沙发墙深色木饰面搭配浅色水墨画壁布,使整个空间充满浓浓书香气息。

美弗霞湾-108平-新中式风格-餐厅.jpg

这种玄关柜与餐边柜一体的设计是整个空间的亮点,木格栅与大理石完美的碰撞提升了整个空间的气质,也提升了整体的色彩。

美弗霞湾-108平-新中式风格-次卧室-.jpg 美弗霞湾-108平-新中式风格-主卧室.jpg

主卧室床头采用护墙板与硬包拼接作为背景,线型灯作为分割,层次分明,使整个空间充满富雅的神韵。

美弗霞湾-108平-新中式风格-卫生间-.jpg

水墨画般纹理的瓷砖与整体风格呼应,这种大面积的通铺,让纹理看上去更加的自然。

美弗霞湾-108平-新中式风格-厨房.jpg

开放式的厨房能与餐厅融为一体,提升了整体的空间感,增强了空间的流动性,业主使用起来更加方便。

美弗霞湾-108平-新中式风格-门厅.jpg 美弗霞湾-108平-新中式-平面布局图.jpg

案例设计师

林凤设计师

设计师:林凤设计师

从业时间:8年

设计理念:艺术是生活的升华,设计是艺术的呈现。

预约设计师

算算你家装修多少钱

报名即享丰厚赠品,品质装修

免费报价
咨询热线:400-656-9909
20190221103704574636.jpg

精品设计案例

20180612134930523248.jpg 服务号二维码.jpg