立即预约 立即预约
免费定制整装家居

免费定制整装家居

一站置家 全程无忧 一省到底
hide.png

当前位置: 首页 > 装修案例效果图 > 佳和新城|新中式风格

佳和新城|新中式风格 215平 新中式风格效果图

收藏
案例风格 新中式 案例户型 别墅 案例面积 215平米
楼盘名称 佳和新城 设计师 林凤设计师 案例类型 儿童房

设计理念:老爷子做了一辈子生意 也装过不少房子 不过买别墅装修还是头一回 用房主原话说这辈子也就最后这一套房子了 就喜欢红木家具 说什么也要圆了这个梦 但是考虑到儿女定期还会带孙子回来陪自己 也不能装成纯中式风格 最终考虑做成新中式风格 兼顾了孩子们的感受 也圆了自己一套红木家具的梦想

佳和新城-215-新中式风格-三楼南卧.jpg 佳和新城-215-新中式风格-一楼客厅 (2).jpg 佳和新城-215-新中式风格-一楼客厅.jpg 佳和新城-215-新中式风格-一楼客厅 (3).jpg

客厅和院子是老爷子常年的活动区域 所以一层主要以老人的喜好为主 红木家具搭配一些简洁的造型 整体空间以家具为主色调

佳和新城-215-新中式风格-二楼次卧 (2).jpg 佳和新城-215-新中式风格-二楼次卧.jpg 佳和新城-215-新中式风格-二楼南卧.jpg 佳和新城-215-新中式风格-二楼南卧 (2).jpg 佳和新城-215-新中式风格-三楼次卧 (2).jpg 佳和新城-215-新中式风格-三楼次卧.jpg

二楼空间为老人主卧室 年级大了 不喜欢太花哨的东西 所以整体风格也是以简洁为主 二楼次卧给小孙子 所以整体空间做的轻快一些 毕竟正式活泼好动的时候

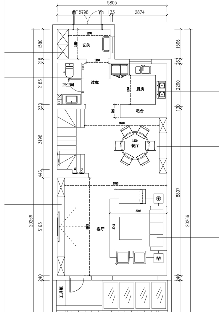
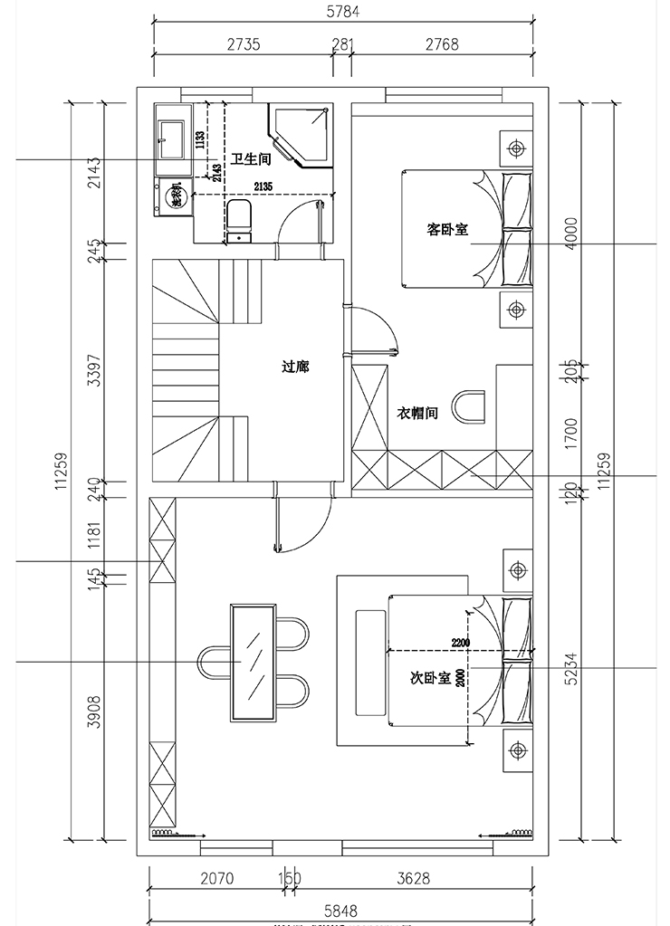
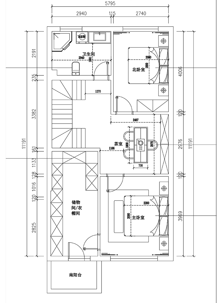
佳和新城-215-新中式风格-二楼卫生间 (2).jpg 佳和新城-215-新中式风格-二楼卫生间.jpg 佳和新城-215-新中式风格-三楼卫生间 (2).jpg 佳和新城-215-新中式风格-三楼卫生间.jpg 佳和新城-215-新中式风格-一楼厨房.jpg 佳和新城-215-新中式风格-平面图二楼.jpg 佳和新城-215-新中式风格-平面图三楼.jpg 佳和新城-215-新中式风格-平面图一楼.jpg

案例设计师

林凤设计师

设计师:林凤设计师

从业时间:8年

设计理念:做有生活的设计。

预约设计师

算算你家装修多少钱

报名即享丰厚赠品,享半价装修

免费报价
咨询热线:400-656-9909
20190221103704574636.jpg

精品设计案例

20180612134930523248.jpg 服务号二维码.jpg