立即预约 立即预约
免费定制整装家居

免费定制整装家居

一站置家 全程无忧 一省到底
hide.png

当前位置: 首页 > 装修案例效果图 > 河畔新城品尚|简美风格

河畔新城品尚|简美风格 100平 现代简约风格效果图

收藏
案例风格 现代简约 案例户型 二居 案例面积 100平米
楼盘名称 河畔新城品尚 设计师 林凤设计师 案例类型 改善性住宅

设计理念:打造拒绝庸俗的一种生活态度和舒适的私人居家空间。

客厅
第1张
第2张
第3张
餐厅
第1张
第2张
卧室
第1张
第2张
卫生间
第1张
厨房
第1张
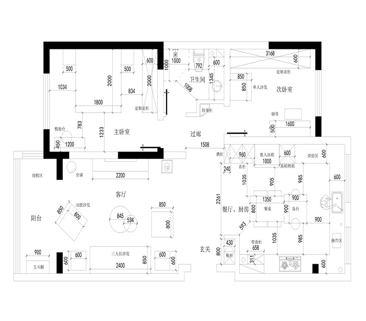
户型图
第1张
河畔新城品尚100平-简美风格-首图.jpg 河畔新城品尚100平-简美风格-客厅1.jpg 河畔新城品尚100平-简美风格-客厅2.jpg

电视背景两侧采用了油漆面定制护墙板,背景墙中心淡蓝色壁布使得整面墙外观看上去更简洁大气,整体,满足了审美需求的同时也起到了材质与色彩的视觉反差碰撞。

河畔新城品尚100平-简美风格-餐厅1.jpg 河畔新城品尚100平-简美风格-餐厅2.jpg

餐桌做成高低岛台,选用了灰色油漆面门板搭配白色石英石台面,岛台与餐桌整体定制同一分区有不同功能简单实用。

河畔新城品尚100平-简美风格-次卧.jpg 河畔新城品尚100平-简美风格-主卧.jpg

原木色地板搭配白色衣柜整个卧室给人感觉干净清新,白色的美式床头与主灯衣柜相互呼应完美结合,烟灰色窗帘恰到好处的稳住整个空间的明暗度。

河畔新城品尚100平-简美风格-卫生间.jpg

浅灰色瓷砖墙面与灰蓝色洗漱柜结合在颜色上给人一种宁静高级的感觉,整个空间简洁大气现代与美式的感觉完美融合。

河畔新城品尚100平-简美风格-厨房.jpg

浅灰色门板与白色石英石台面显得整洁有艺术感,石材台面也显得厨房操作区的空间感被放大,与浅灰色下柜产生对比反差,缓解了深色电器带来的压抑感,使得整个空间内涵有艺术。

河畔新城品尚100平-简美风格-户型图.jpg

案例设计师

林凤设计师

设计师:林凤设计师

从业时间:7年

设计理念:

预约设计师

算算你家装修多少钱

报名即享丰厚赠品,享半价装修

免费报价
咨询热线:400-656-9909
20190221103704574636.jpg

精品设计案例

20180612134930523248.jpg 服务号二维码.jpg