立即预约 立即预约
免费定制整装家居

免费定制整装家居

一站置家 全程无忧 一省到底
hide.png

当前位置: 首页 > 装修案例效果图 > 王府花园|现代简约

王府花园|现代简约 170平 现代简约风格效果图

收藏
案例风格 现代简约 案例户型 三居 案例面积 170平米
楼盘名称 王府花园 设计师 陆旭 案例类型 改善性住宅

设计理念:本案采用现代风格,造型简洁,线条流畅的家具组合搭配,营造出稳定、协调、温馨的空间感受,满足现代年轻家庭的轻奢需求 。

客厅
第1张
第2张
第3张
餐厅
第1张
卧室
第1张
第2张
第3张
卫生间
第1张
厨房
第1张
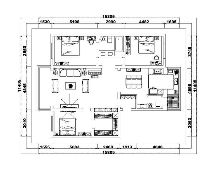
户型图
第1张
王府花园-170平米-现代风格-客厅1.jpg 王府花园-170平米-现代风格-客厅3.jpg 王府花园-170平米-现代风格-客厅2.jpg

用简练的线条、优雅的色调、适当的留白、精致的家具饰品,造就了如此浪漫、优雅的空间,让设计与品质生活完美融合,传递优雅的生活体验。

王府花园-170平米-现代风格-餐厅.jpg

在餐桌餐椅上,吊灯上以及装饰上充分利用金属元素,这种质感能完美的凸显出现代轻奢风格的低调奢华 。

王府花园-170平米-现代风格-卧室1.jpg 王府花园-170平米-现代风格-卧室2.jpg 王府花园-170平米-现代风格-卧室3.jpg

设计感十足的背景墙搭配上现代的床以及软装,通过软装的搭配,精致且简单的环境,给人一种与生俱来的时尚感。

王府花园-170平米-现代风格-卫生间.jpg

大面积的卫生间,做了双盆还有浴缸的设计,让空间显得干净立正,墙面是瓷砖与乳胶漆的搭配,清新时尚。

王府花园-170平米-现代风格-厨房.jpg

通过地面瓷砖拼花与墨绿色橱柜的搭配,使空间看起来浪漫温柔温馨优雅。

户型图.jpg

案例设计师

陆旭

设计师:陆旭

从业时间:12年

设计理念:懂生活 爱生活 享受生活 才能设计好一个每天生活的地方

预约设计师

算算你家装修多少钱

报名即享丰厚赠品,享半价装修

免费报价
咨询热线:400-656-9909
20190221103704574636.jpg

精品设计案例

20180612134930523248.jpg 服务号二维码.jpg