立即预约 立即预约
免费定制整装家居

免费定制整装家居

一站置家 全程无忧 一省到底
hide.png

当前位置: 首页 > 装修案例效果图 > 金地半山麓|现代简约

金地半山麓|现代简约 220平 现代简约风格效果图

收藏
案例风格 现代简约 案例户型 三居 案例面积 220平米
楼盘名称 金地半山麓 设计师 郑婷婷 案例类型 改善性住宅

设计理念:业主为年轻夫妇,想简单,舒适,功能为主。现代简约是体现时代特征为主,没有过分的装饰,一切从功能出发,讲究造型比例适度、空间结构图明确美观,强调外观的明快、简洁。体现了现代生活快节奏、简约和实用,但又富有朝气的生活气息。

客厅
第1张
第2张
餐厅
第1张
卧室
第1张
第2张
卫生间
第1张
厨房
第1张
休闲区
第1张
衣帽间
第1张
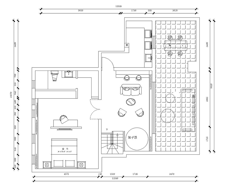
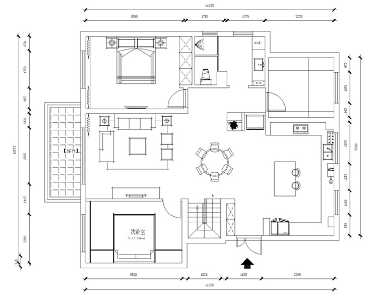
户型图
第1张
第2张
金地半山麓-220平-现代简约风格-一楼客厅.jpg 金地半山麓-220平-现代简约风格-一首图.jpg

1.空间里以浅色为基调,黑、白、灰、咖色等这些暖浅色调之间变换,镶嵌组合,协调一致,既不单调也不凌乱,干净的色系,能够让人融入进去,雾化壁炉的使用也恰到好处地提升了空间的温度,居住其中感受宁静舒适。

金地半山麓-220平-现代简约风格-一楼餐厅.jpg

餐椅摆放以围坐的形式出现,一家人在繁忙的都市生活中放慢脚步,坐下笑谈生活,浓厚的家庭氛围油然而生。

金地半山麓-220平-现代简约风格-二楼卧室.jpg 金地半山麓-220平-现代简约风格-一楼主卧室.jpg

二楼主卧带有L型衣帽间,定制的到顶衣柜蕴含超强收纳力,关键位置玻璃柜门的使用及外立面有藏有露的设计,更是让空间通透、自在,令人十分憧憬,光线最好的窗边位留给了女主人的梳妆台,吊顶设计做了无主灯设计,内嵌式筒灯保证了整个空间的光源的同时增加了氛围感。

金地半山麓-220平-现代简约风格-一楼卫生间.jpg

公共卫生间满足了独立的干湿分区使用需求,除了延续灰调石材呈现,柜体部分使用了黑色,使这个区域与其他空间融合之外更为个性化。二楼卫浴间以一面玻璃实现干湿分离的目的。

金地半山麓-220平-现代简约风格-一楼厨房.jpg

推开玻璃移门便是厨房,半开放式的设计既解决了油烟问题,也让空间更加通透。

金地半山麓-220平-现代简约风格-二楼活动室.jpg

采用地台设计,一侧的墙面以灰色柜体覆盖,所有的造型都是服务于功能,让这个家实用又美观。

金地半山麓-220平-现代简约风格-二楼衣帽间.jpg 金地半山麓-220平-现代简约风格-二楼户型图.jpg 金地半山麓-220平-现代简约风格-一楼户型图.jpg

案例设计师

郑婷婷

设计师:郑婷婷

从业时间:9年

设计理念:用心与住宅对话,交织出住宅中的灵魂所属

预约设计师

算算你家装修多少钱

报名即享丰厚赠品,享半价装修

免费报价
咨询热线:400-656-9909
20190221103704574636.jpg

精品设计案例

20180612134930523248.jpg 服务号二维码.jpg