立即预约 立即预约
免费定制整装家居

免费定制整装家居

一站置家 全程无忧 一省到底
hide.png

当前位置: 首页 > 装修案例效果图 > 金辉中央云著|现代简约

金辉中央云著|现代简约 90平 现代简约风格效果图

收藏
案例风格 现代简约 案例户型 一居 案例面积 90平米
楼盘名称 金辉中央云著 设计师 林凤设计师 案例类型 儿童房

设计理念:业主为年轻男女朋友,用作婚房。常住两口,备用儿童房,老人房

客厅
第1张
第2张
第3张
餐厅
第1张
卧室
第1张
第2张
卫生间
第1张
厨房
第1张
休闲区
第1张
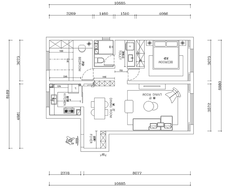
户型图
第1张
金辉中央云著-90平-现代风格-首图.jpg 金辉中央云著-90平-现代风格-客厅.jpg 金辉中央云著-90平-现代风格-客厅1.jpg

客厅背景墙采用黑白灰色调为主,彰显男人风范,又采用隐形门处理,使其空间开阔,给人一种气势磅礴的感觉。

金辉中央云著-90平-现代风格-餐厅.jpg

餐厅餐桌与倒台连接一体,放在中间有环绕式动线,使其空间紧凑而不浪费。

金辉中央云著-90平-现代风格-榻榻米.jpg 金辉中央云著-90平-现代风格-主卧.jpg

主卧背景墙采用灰色乳胶漆,挂画使空间大气,采用感应灯,使空间上升一个层次。

金辉中央云著-90平-现代风格-卫生间.jpg

卫生间瓷砖为浅灰材质,独立的淋浴区采用黑色材质,高级感上升,体现出业主高端的气质感。

金辉中央云著-90平-现代风格-厨房.jpg

厨房为中厨封闭式空间,透明的玻璃门,可以通过玻璃门可以看到孩子在外的活动状态,家庭氛围感浓郁。

金辉中央云著-90平-现代风格-干区.jpg 金辉中央云著-90平-现代风格-平面图.jpg

案例设计师

林凤设计师

设计师:林凤设计师

从业时间:13年

设计理念:设计是用心雕琢的艺术品

预约设计师

算算你家装修多少钱

报名即享丰厚赠品,品质装修

免费报价
咨询热线:400-656-9909
20190221103704574636.jpg

精品设计案例

20180612134930523248.jpg 服务号二维码.jpg