立即预约 立即预约
免费定制整装家居

免费定制整装家居

一站置家 全程无忧 一省到底
hide.png

当前位置: 首页 > 装修案例效果图 > 保利达翠堤湾|现代简约

保利达翠堤湾|现代简约 110平 现代简约风格效果图

收藏
案例风格 现代简约 案例户型 二居 案例面积 110平米
楼盘名称 保利达翠堤湾 设计师 李丹 案例类型 改善性住宅

设计理念:现代简约风格是进来装修行业最为流行、最为广泛应用的设计风格。本案设计整体以简洁、明亮为主导。将灯光与自然光完美结合。为业主打造一个舒适温馨家居环境。

客厅
第1张
第2张
餐厅
第1张
第2张
卧室
第1张
第2张
第3张
卫生间
第1张
厨房
第1张
第2张
书房
第1张
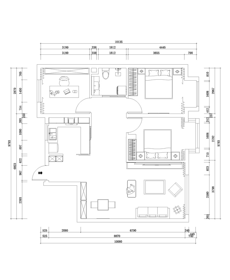
户型图
第1张
保利达翠堤湾-110平-现代风格-客餐厅.jpg 保利达翠堤湾-110平-现代风格-客厅.jpg

客厅与餐厅相邻,整体采用灰色与蓝色进行搭配。石材材质的茶几黑白搭配。棚面采用直线条装饰,除去复杂的装饰造型,使整个客厅看起来干净简洁。浅灰色沙发与深灰色地砖采用同色系搭配。整个空间简洁,干净时尚。

保利达翠堤湾-110平-现代风格-餐厅 (2).jpg 保利达翠堤湾-110平-现代风格-餐厅.jpg

金属桌腿与石材桌面组成的餐桌与布艺餐椅相搭配,使整个餐厅明亮而不失色彩。墙边搭配定制到顶的棕色餐边柜,设置酒格,满足客户使用需求。

保利达翠堤湾-110平-现代风格-次卧.jpg 保利达翠堤湾-110平-现代风格-主卧 (2).jpg 保利达翠堤湾-110平-现代风格-主卧.jpg

主卧室床头背景墙采用灰色乳胶漆,浅灰色床身搭配黑白格子毛毯。窗帘采用灰色系,搭配白色窗纱。保证采光的同时也保障了私密性。整个居住空间给人以简单大气感觉。

保利达翠堤湾-110平-现代风格-卫生间.jpg

卫生间墙砖地砖采用同种颜色相搭配。黑色系浴室柜。整个空间色彩统一又不失亮点、明亮又不失沉稳。

保利达翠堤湾-110平-现代风格-厨房 (2).jpg 保利达翠堤湾-110平-现代风格-厨房.jpg 保利达翠堤湾-110平-现代风格-书房.jpg 保利达翠堤湾-110平-现代风格-户型图.jpg

案例设计师

李丹

设计师:李丹

从业时间:5年

设计理念:用我的专业和你的想法,打造专业的家

预约设计师

算算你家装修多少钱

报名即享丰厚赠品,享半价装修

免费报价
咨询热线:400-656-9909
20190221103704574636.jpg

精品设计案例

20180612134930523248.jpg 服务号二维码.jpg