立即预约 立即预约
免费定制整装家居

免费定制整装家居

一站置家 全程无忧 一省到底
hide.png

当前位置: 首页 > 装修案例效果图 > 金地樾檀山|现代简约

金地樾檀山|现代简约 130平 现代简约风格效果图

收藏
案例风格 现代简约 案例户型 三居 案例面积 130平米
楼盘名称 金地樾檀山 设计师 林凤设计师 案例类型 改善性住宅

设计理念:本案是现代风格,户型布局简单,基本可以满足屋主的居住需求,所以维持基本的动线布局。在保证空间独立的同时,采光也得到了满足。

客厅
第1张
第2张
第3张
餐厅
第1张
卧室
第1张
第2张
第3张
卫生间
第1张
厨房
第1张
门厅
第1张
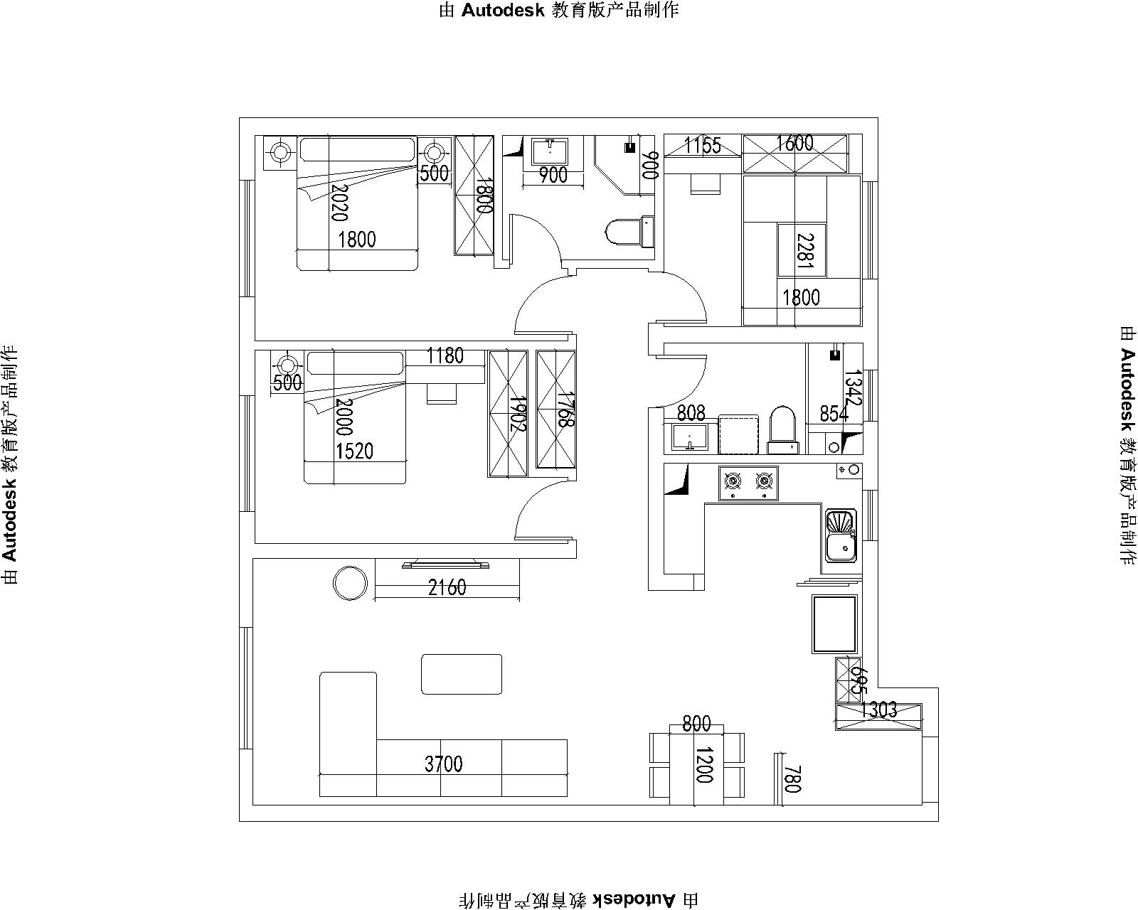
户型图
第1张
金地樾檀山-130平-现代风格-客厅.jpg 金地樾檀山-130平-现代风格-客厅2.jpg 金地樾檀山-130平-现代风格-首图.jpg

入户门打开,靓丽橘与极致灰的搭配映入眼帘,亮橘色作为空间唯一的一抹跳色,占据着重要的位置,传递着空间态度。

金地樾檀山-130平-现代风格-餐厅.jpg

餐厅和客厅分区吊棚,棚顶加了一圈金属线条,餐椅的跳色搭配和沙发、背景墙一致,相互呼应。背后的隔断起到划分区域,做了个入门过廊隔断。

金地樾檀山-130平-现代风格-次卧1.jpg 金地樾檀山-130平-现代风格-次卧2.jpg 金地樾檀山-130平-现代风格-主卧.jpg

主卧室床头背景墙用的硬包加金属线条,显得高贵大气,棚顶做了石膏线干净显得空间不拘谨,局部的床单、挂画、抱枕运用了橘色跳色,居住空间不沉闷。儿童房选购了一款金丝檀木的1.5床,考虑孩子之后长大这个床也足够孩子住,墙面粉刷了baby蓝,加了一些儿童配饰,展示孩子的天堂。榻榻米卧室考虑之后的父母会经常住,榻榻米的好处就是储物功能非常强大。整体墙面粉刷了淡灰色,让屋子增添了些色彩。

金地樾檀山-130平-现代风格-卫生间.jpg 金地樾檀山-130平-现代风格-厨房.jpg

U型的厨房,把空间发挥到了极致,主要是满足基本功能,特别大气的就是做的三联动拉门,油烟较大,就把移门关上,平时更多是把移门打开,非常得实用。爵士白的墙砖搭配灰色的柜板。

金地樾檀山-130平-现代风格-客厅2.jpg

门口的玻璃隔断起到划分区域,做了个入门过廊隔断。让客户进入房子的时候避免一览无余的尴尬。玻璃隔断也具有透光性,不影响室外光照进屋。

金地樾檀山-130平-平面方案布局.jpg

案例设计师

林凤设计师

设计师:林凤设计师

从业时间:6年

设计理念:一切随心,用心去感悟空间

预约设计师

算算你家装修多少钱

报名即享丰厚赠品,享半价装修

免费报价
咨询热线:400-656-9909
20190221103704574636.jpg

精品设计案例

20180612134930523248.jpg 服务号二维码.jpg