立即预约 立即预约
免费定制整装家居

免费定制整装家居

一站置家 全程无忧 一省到底
hide.png

当前位置: 首页 > 装修案例效果图 > 荣盛紫提东郡-现代风格

荣盛紫提东郡-现代风格 103平 现代简约风格效果图

收藏
案例风格 现代简约 案例户型 三居 案例面积 103平米
楼盘名称 荣盛紫提东郡 设计师 慈英雪 案例类型 婚房

设计理念:本设计方案以现代风格为主,以对比色作为全屋主色调,提升了整个空间的时尚感觉,打造了一个与众不同的空间。

客厅
第1张
第2张
第3张
餐厅
第1张
卧室
第1张
第2张
第3张
卫生间
第1张
厨房
第1张
门厅
第1张
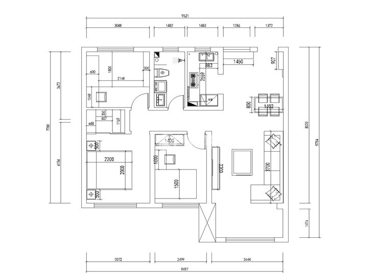
户型图
第1张
S8-慈英雪-紫提东郡-103平-现代风格-客厅 (2).jpg S8-慈英雪-紫提东郡-103平-现代风格-客厅 (3).jpg S8-慈英雪-紫提东郡-103平-现代风格-客厅(首图).jpg

客厅简单的制作直线棚,石膏线收边,凸显酷酷的线条感,搭配搭配金属条与石膏线的背景墙,灯具也选择金色线条搭配,整体体现大气时尚,餐桌与电视柜 茶几都选用大理石材质,体现出客厅轻奢感觉,白色墙面搭配淡蓝色沙发,给人清新干净的舒适感。

S8-慈英雪-紫提东郡-103平-现代风格-餐厅.jpg S8-慈英雪-紫提东郡-103平-现代风格-北卧室 (2).jpg S8-慈英雪-紫提东郡-103平-现代风格-北卧室.jpg S8-慈英雪-紫提东郡-103平-现代风格-次卧室.jpg

卧室是安静的地方,雾霾蓝色的壁纸使人感到时尚与浪漫,搭配浅咖色的床头,使空间整体感更强,达到了业主想要的效果

S8-慈英雪-紫提东郡-103平-现代风格-卫生间.jpg

3.卫生间整体采用了深灰的的墙地砖,搭配黑色的浴室柜,两种颜色完美的结合在一起,使空间更具高级感

S8-慈英雪-紫提东郡-103平-现代风格-厨房.jpg

厨房主要以上柜白色加深咖色的下柜,采用白色理石纹理的墙砖,更加能突显图房主的品味。大气有质感。

S8-慈英雪-紫提东郡-103平-现代风格-门厅.jpg S8-慈英雪-紫提东郡-103平-现代风格-平面布局图.jpg

案例设计师

慈英雪

设计师:慈英雪

从业时间:8年

设计理念:做有情感的设计,做符合生活方式的设计,无限优化生活空间

预约设计师

算算你家装修多少钱

报名即享丰厚赠品,享半价装修

免费报价
咨询热线:400-656-9909
20190221103704574636.jpg

精品设计案例

20180612134930523248.jpg 服务号二维码.jpg