立即预约 立即预约
免费定制整装家居

免费定制整装家居

一站置家 全程无忧 一省到底
hide.png

当前位置: 首页 > 装修案例效果图 > 龙湖天辰原著-轻奢

龙湖天辰原著-轻奢 270平 轻奢风格效果图

收藏
案例风格 轻奢 案例户型 四居 案例面积 270平米
楼盘名称 龙湖天辰原著 设计师 吴勇 案例类型 改善性住宅

设计理念:本案运用的风格是现代轻奢风格。业主是一户四口之家,没有太多复杂的造型,最基础还是实用性在简单的搭配上体现出一些奢华感,入眼大气视野开阔有突出的点缀,也添加一些奢华感,两种风格相互搭配。

客厅
第1张
第2张
餐厅
第1张
卧室
第1张
卫生间
第1张
厨房
第1张
阳台
第1张
儿童房
第1张
第2张
衣帽间
第1张
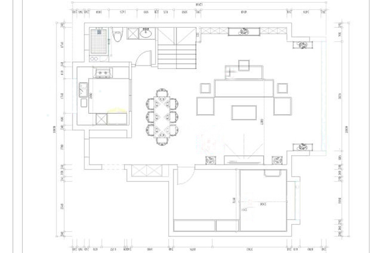
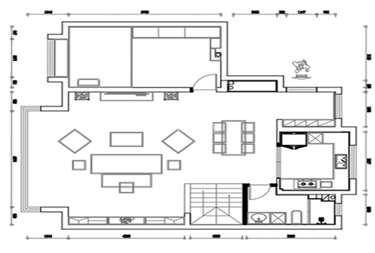
户型图
第1张
第2张
龙湖天辰原著  270平 现代轻奢  首图.jpg 龙湖天辰原著  270平 现代轻奢 客厅-1.jpg

客厅以灰色调作为打底,并没有利用太多华丽的装饰,整体全部以浅灰,后面灰橙色的餐椅和灰色吧台有着鲜明的对比,在加上一组装饰柜功能性与实用性完全满足客户,整体风格白色理石背景墙相呼应让空间的更有节奏感,侧面设计出休闲养生区,使休息时更放松,解乏,让身心愉悦。

龙湖天辰原著  270平 现代轻奢 餐厅-1.jpg

餐厅延续客厅的整体格调,桌台用白色理石加质感,与客厅空间搭配相互呼应,感觉一种高级大气的视觉,餐椅正面采用灰色,后面黑色连接蹬腿,完全体现了,现代的黑白灰的搭配,又与客厅颜色相呼应使整个空间给人一种眼前一亮的视觉,简单的吊灯轻松打造了大气又奢华的轻奢感觉。

龙湖天辰原著  270平 现代轻奢 主卧_.jpg

这个是一个多功能卧室,总体以灰色 ,白色为主因为颜色有明显呼应,采用一点点黑色做点缀,由于空间比较大,设计出落地窗,很大气,开阔视野,所有的空间都能合理运用,为了让空间简洁一些在体现出点奢华感,屋内采用的高级灰地砖,这个卧室有足够的实用性,同时是现代与轻奢互相运用。

龙湖天辰原著  270平 现代轻奢卫生间.jpg

主卫的墙面和地面采高级用灰大砖,手盆和洗衣机定制在一起台面用岩板体现出干净,也很方便打理也减少占地空间,又加了一个浴屏防止洗澡把水弄那都是,也为了隐私性更好,马桶上方摆放挂画,不会让空间显得突兀空旷,体现出了黑白灰的现代风格,同时也一些轻奢感

龙湖天辰原著  270平 现代轻奢 厨房.jpg

厨房墙面采用白色瓷砖,地面采用高级灰色砖给总空间一种很亮堂的视觉感,上下柜也采用暖咖色,隐形把手,总体给人一种很大气,很干净利索感,,在添加一些镶嵌式厨具将轻奢的感觉突显出来,也体现出了一些现代的黑白灰,也综合整体也不会给人很冷的感觉,然而会有很温馨,家的感觉。

龙湖天辰原著  270平 现代轻奢 阳台-1.jpg 龙湖天辰原著  270平 现代轻奢  女儿房.jpg 龙湖天辰原著  270平 现代轻奢 男孩房.jpg 龙湖天辰原著  270平 现代轻奢衣帽间.jpg 龙湖天辰原著  270平 现代轻奢  平面图.jpg 龙湖天辰原著  270平 现代轻奢平面图.jpg

案例设计师

吴勇

设计师:吴勇

从业时间:11年

设计理念:用抽象的思维去设计形象的事物

预约设计师

算算你家装修多少钱

报名即享丰厚赠品,品质装修

免费报价
咨询热线:400-656-9909
20190221103704574636.jpg

精品设计案例

20180612134930523248.jpg 服务号二维码.jpg